Beschrijving

Aan de statige Avenue Carnisse wacht dit moderne herenhuis op nieuwe bewoners die ruimte, licht en luxe willen combineren met een ideale ligging.

In de directe omgeving vindt u scholen, sportvoorzieningen, winkels en horecagelegenheden. Op korte loopafstand ligt een tramhalte van de Tram-Plus, waarmee u binnen circa 30 minuten in het centrum van Rotterdam staat. Daarnaast bent u met de auto snel op de A15 en A29. Een ideale plek voor wie ruimte zoekt in een rustige, maar goed bereikbare woonomgeving.

Indeling

Begane grond

Via de entree aan de voorzijde komt u binnen in de gezellige zithoek/eetkamer, waar ook de toiletruimte met zwevend toilet en fonteintje zich bevinden. 

De moderne keuken, centraal in de woning gelegen, is uitgevoerd in een dubbele opstelling met hoogwaardige apparatuur zoals een inductiekookplaat, combimagnetron, vaatwasser, koelkast, vriezer, dubbele spoelbak en een ingebouwd koffieapparaat.

Aan de achterzijde van de woning bevindt zich de royale en lichte woonkamer met eiken vloer, voorzien van hoge plafonds en openslaande deuren die toegang bieden naar de achtertuin met prachtige zonwering inclusief stevige constructie. De grote raampartijen zorgen voor een prachtige lichtinval. 

Vanuit de woonkamer heeft u toegang tot de eerste verdieping

Eerste verdieping.
Op de eerste verdieping bevindt zich een ruime en lichte slaapkamer met veel natuurlijke lichtinval met tweemaal een deur met toegang tot een Frans balkon.
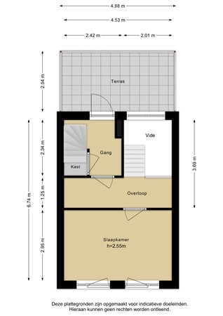
Daarnaast heeft u op deze verdieping direct toegang tot het royale terras aan de achterzijde van de woning. Dit ruime terras biedt volop mogelijkheden om heerlijk buiten te zitten, bijvoorbeeld om te genieten van een kop koffie in de ochtend of een ontspannen moment in de middag of avond. Door de gunstige ligging is het een fijne plek om in alle rust van de buitenlucht te genieten.

Tweede verdieping 
Via de overloop bereikt u de hoofdslaapkamer aan de voorzijde, voorzien van een Frans balkon en een badkamer. Deze is geheel betegeld en uitgerust met een ligbad, douchecabine, tweede toilet en dubbele wastafel met meubel.

Derde verdieping
Hier vindt u nog twee slaapkamers aan de voorzijde, beide voorzien van een deur met toegang tot Frans balkon. Op deze verdieping bevindt zich de tweede badkamer, met douchecabine, derde toilet, wastafelmeubel en de aansluitingen voor de wasmachine en droger. In de aparte technische ruimte staan de CV-combiketel, WTW installatie en de mechanische ventilatie opgesteld. 

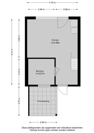
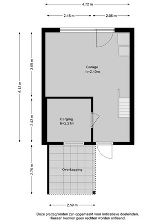
De achtertuin is fraai aangelegd met sierbestrating en kunstgras, en een sfeervolle overkapping. Achter in de tuin staat de royale vrijstaande stenen garage met kantoor/werkruimte en een royale vliering. De garage beschikt over een kanteldeur met loopdeur, elektra en verlichting. Via de garage bereikt u het mandelige achter terrein, dat is afgesloten met een elektrisch hek en waar ruimte is voor het parkeren van een tweede auto.

Bijzonderheden
•	Speelse indeling met maar liefst vier woonlagen
•	Ruime en lichte woonkamer met hoge plafonds en openslaande deuren naar de tuin
•	Moderne keuken met inbouwapparatuur 
•	Twee badkamers
•	Royale vrijstaande stenen garage 
•	Gezamenlijk afgesloten achter terrein met elektrische poort

Kenmerken