Beschrijving
Instapklare woning op grote unieke kavel, stijlvolle afwerking en zonnige tuin
In de kindvriendelijke en populaire wijk Smitshoek vindt u deze riante bungalow. De woning is ideaal gelegen met diverse voorzieningen op korte afstand, waaronder basisscholen, kinderdagverblijven, winkels, supermarkten en recreatiemogelijkheden. Ook het openbaar vervoer en belangrijke uitvalswegen zijn goed bereikbaar, waardoor u binnen enkele minuten in het bruisende centrum van Rotterdam bent – zowel met de auto als met het OV.
Indeling
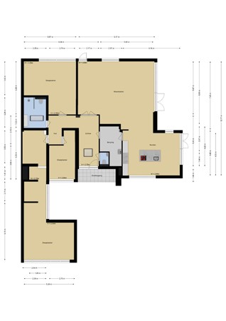
Bij binnenkomst betreedt u een ruime hal met een modern toilet en fonteintje. Vanuit de hal is er toegang tot de praktische bijkeuken, voorzien van de meterkast, aansluitingen voor wasmachine en droger, en de opstelplaats van de cv-ketel. De bijkeuken biedt tevens een doorgang naar de moderne keuken – ook bereikbaar vanuit de woonkamer.
De woonkamer is toegankelijk via stijlvolle zwarte stalen deuren met donker glas, wat zorgt voor een luxe uitstraling en een prachtige lichtinval. De royale living is voorzien van grote raampartijen, een openslaande deur en directe toegang tot de zonnige achtertuin.
De keuken is volledig nieuw en van alle gemakken voorzien: een vaatwasser, combi-oven, elektrische kookplaat met geïntegreerd luxe afzuigsysteem, een royale koel-vriescombinatie, spoelbak met kraan, en een fraai werkblad met modern afgewerkte kasten.
Vanuit de hal bereikt u aan de linkerzijde een royale hoofdslaapkamer met directe toegang tot de luxe badkamer. Deze is voorzien van een koperkleurige regendouche, een tweede toilet, een dubbel wastafelmeubel en een dakraam dat zorgt voor natuurlijk daglicht.
De tweede slaapkamer bevindt zich aan de voorzijde van de woning.
Een tussenruimte richting de derde slaapkamer biedt de mogelijkheid om een inloopkast (walk-in closet) te realiseren.
Tuin
De fraai aangelegde tuin is zonnig gelegen en bestaat uit een combinatie van groen gazon en strakke bestrating – ideaal voor ontspannen, spelen en genieten van het buitenleven.
Verbouwing 2025*
Tijdens de recente verbouwing is werkelijk aan alles gedacht. De woning is voorzien van hoogwaardige isolatie en beschikt over een energielabel A+. Deel van de kozijnen zijn vervangen, al het glas in vervangen en voorzien van HR++ isolatieglas. Het dakvlak en de gevels zijn volledig geïsoleerd met kwalitatief isolatiemateriaal en afgewerkt met nieuwe bitumen. Ook zijn de gevels grondig gereinigd, wat de woning een frisse en verzorgde uitstraling geeft.
Binnen zijn de plafonds en wanden strak afgewerkt met nieuw stucwerk. De vloer is volledig vernieuwd met een stijlvolle visgraatvloer van hoogwaardige kwaliteit, gelegd op een ondergrond van uitstekend geïsoleerd schuimbeton. Door de hele woning is comfortabele 22-groeps vloerverwarming aangelegd.
De elektra is volledig vernieuwd, inclusief meterkast, schakelmateriaal, stopcontacten, spots en schakelaars. Ook het loodgieterswerk is volledig aangepakt: alle afvoeren, leidingen, rioleringen en buitenkranen zijn vervangen en er zijn nieuwe buitenafvoeren geplaatst.
De woning beschikt over een gloednieuwe badkamer en een apart toilet. De keuken is eveneens volledig nieuw en van alle gemakken voorzien: een vaatwasser, combi-oven, elektrische kookplaat met geïntegreerd luxe afzuigsysteem, een royale koel-vriescombinatie, spoelbak met kraan, en een fraai werkblad met modern afgewerkte kasten.
Daarnaast is er gedacht aan de toekomst. De woning is uitgerust met een warmtepomp en voorbereid op de aansluiting van zonnepanelen en aircosystemen. Ook is er een basis gelegd voor een alarmsysteem. In de achtertuin zijn al voorzieningen getroffen voor een buitenverblijf, inclusief straatwerk, afvoeren voor toilet, buitenkeuken en buitendouche, evenals bekabeling voor elektra en waterleidingen. Aan de voorzijde van de woning is reeds een voorbereiding getroffen voor het aansluiten van een laadpaal voor een elektrische auto.