Beschrijving
Ben jij op zoek naar een woning met potentie, waar je jouw eigen woonideeën kunt realiseren? Dan is deze hoekwoning met carport en parkeerplaats op eigen terrein zeker het bekijken waard! Deze woning biedt een solide basis, een praktische indeling en een heerlijke ligging in een rustige, kindvriendelijke wijk. Met wat liefde en aandacht maak je hier een fijn en eigentijdse familiewoning van.
Interesse? Logisch! Wacht niet te lang, plan direct een bezichtiging in via 085-0044277.
De woning ligt in de rustige, groene wijk “Buitenoord” met alle voorzieningen binnen handbereik. In de directe omgeving vind je diverse basisscholen, kinderopvang, Park Buitenoord en speeltuintjes. Op een aantal fietsminuten zijn ook diverse middelbare scholen en een divers aanbod aan winkels te vinden (detailhandel en verschillende supermarkten). Ook de bereikbaarheid is uitstekend: via de A15, A16 en A29 ben je snel in Rotterdam, Dordrecht of Ridderkerk. Het openbaar vervoer (bus en treinstation) is eveneens goed vertegenwoordigd, waardoor je moeiteloos alle kanten op kunt.
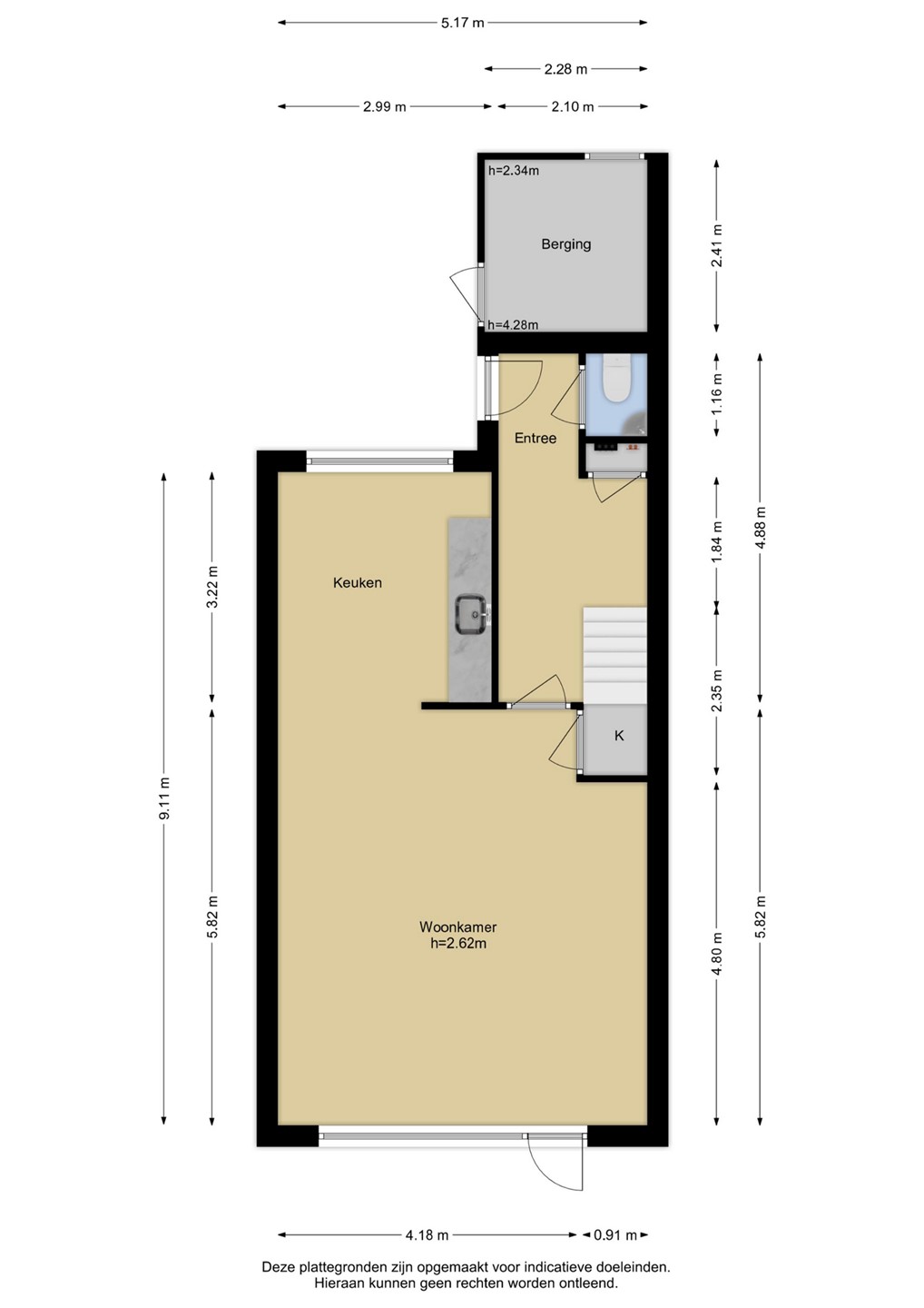
Begane grond
Via de royale voortuin met parkeergelegenheid en carport bereik je de entree van de woning. Aan de voorzijde bevindt zich tevens een berging met separate ingang — ideaal voor het stallen van fietsen of extra opslagruimte.
De entree geeft toegang tot de hal met trapopgang naar de eerste verdieping, de meterkast, toiletruimte en de deur naar de woonkamer. De toiletruimte is half betegeld en voorzien van een closet en fonteintje.
De woonkamer is licht en praktisch ingedeeld, voorzien van een trapkast en een laminaatvloer. Aan de voorzijde van de woning bevindt zich de keuken, met een nette wandopstelling voorzien van inbouwkoelkast en vriezer. De keuken heeft een tegelvloer, betegelde achterwand, crèmekleurige kastjes en een kunststof werkblad.
Via een deur is er toegang tot de achtertuin, die heerlijk zonnig op het zuidwesten is gelegen. De tuin heeft een terras en veel natuurlijke begroeiing, een berging en een zij-tuin met doorloop naar de achterzijde. Een plek met potentie — met wat aandacht maak je hier een heerlijke buitenruimte van!
Eerste verdieping
De overloop biedt toegang tot drie slaapkamers: één aan de voorzijde (met wastafel) en twee aan de achterzijde. Op de overloop is tevens een gangkast en de open trap naar de tweede verdieping.
De badkamer is driekwart betegeld en voorzien van een douche met thermostaatkraan, wastafel met planchet en spiegel, een tweede toilet, designradiator, aansluiting voor wasapparatuur en een raam voor natuurlijke ventilatie.
Tweede verdieping
De royale voorzolder beschikt over bergruimte achter de knieschotten. Daarnaast is hier een vierde slaapkamer met dakkapel, laminaatvloer en extra bergruimte achter de schotten.
Bijzonderheden
- Gelegen op eigen grond;
- Niet zelf bewoningsclausule van toepassing;
- Bouwjaar 1978;
- EPA-Label C;
- Gebruiksoppervlakte wonen: ca. 133 m²
- Perceeloppervlakte: ca. 205 m²
- Oplevering in overleg.
Toelichtingsclausule NEN2580
De Meetinstructie is gebaseerd op de NEN2580. De Meetinstructie is bedoeld om een meer eenduidige manier van meten toe te passen voor het geven van een indicatie van de gebruiksoppervlakte. De Meetinstructie sluit verschillen in meetuitkomsten niet volledig uit, door bijvoorbeeld interpretatieverschillen, afrondingen of beperkingen bij het uitvoeren van de meting.
Deze informatie is door ons met de nodige zorgvuldigheid samengesteld. Onzerzijds wordt echter geen enkele aansprakelijkheid aanvaard voor enige onvolledigheid, onjuistheid of anderszins, dan wel de gevolgen daarvan. Alle opgegeven maten en oppervlakten zijn indicatief.
Gezien het bouwjaar van de woning zal er een ouderdoms- en asbestclausule worden opgenomen.