Beschrijving

Nette 2-kamer benedenwoning met zonnige achtertuin.

Deze instapklare en goed onderhouden 2-kamer benedenwoning ligt in de populaire wijk "Nieuweland" en biedt een ideale combinatie van comfort en gemak. De woning beschikt over een lichte woonkamer met toegang tot de fraai aangelegde achtertuin op het zonnige zuiden, een ruime slaapkamer en een mooie badkamer. De centrale ligging biedt alles wat u nodig heeft, met winkels, openbaar vervoer en uitvalswegen in de directe omgeving.

Indeling
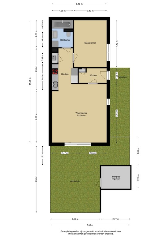
Begane grond
Bij binnenkomst wordt u verwelkomd in de entree, waar zich de meterkast en garderobe bevinden. Vanuit hier loopt u door naar de ruime en lichte woonkamer (ca. 29 m²), voorzien van een fraaie laminaatvloer. Dankzij de grote schuifpui heeft u direct toegang tot de zonnige achtertuin op het zuiden, waar u de hele dag heerlijk kunt genieten van de zon.
De open keuken (vernieuwd in 2018) is praktisch ingericht in een parallelle opstelling en uitgerust met hoogwaardig Siemens inbouwapparatuur inclusief een inbouw koelkast en vriezer.
In de keuken bevindt zich tevens een aparte kast met de CV-ketel (2023). 
De slaapkamer is royaal en uitgerust met zonwering voor extra comfort. 
De luxe badkamer, volledig vernieuwd in 2017 en gemoderniseerd in 2024, beschikt over een zwevend toilet, een ligbad, een wastafel met meubel en spiegelkast, een designradiator en aansluitingen voor de wasmachine. 
De achtertuin ligt op het zuiden, wat betekent dat u de hele dag van de zon kunt genieten. Bovendien beschikt de tuin over een stenen berging, ideaal voor extra opbergruimte.

Bijzonderheden:
- Zonnige achtertuin op het Zuiden;
- Berging;
- Luxe badkamer vernieuwd in 2017 en gemoderniseerd in 2024;
- Kunststof kozijnen geplaatst in 2021; 
- Nieuwe vloer uit 2024; 
- Oplevering in overleg; 

Maak snel een afspraak voor een bezichtiging en ontdek zelf de charme van deze woning!

Kenmerken