Beschrijving
Aan de rustige Schaarwei in Barendrecht vindt u deze royale en energiezuinige hoekeengezinswoning, perfect voor gezinnen die op zoek zijn naar luxe, comfort en ruimte!
Interesse? Logisch! Wacht niet te lang, plan direct een bezichtiging in via 085-0044277.
De woning is gebouwd in 2008 en beschikt o.a. door 18 zonnepanelen over energielabel A, wat zorgt voor een energiezuinig en comfortabel woonklimaat. De fantastische zolderverdieping is omgetoverd tot een royale slaapruimte met airconditioning en beschikt over de droom van iedere vrouw: een zeer luxe walk-in closet! Alsof je iedere dag shopt in je eigen winkel, wie wil dat nu niet! De ruimte is prachtig afgewerkt en geeft een zee aan bergruimte, alles achter mooie glazen deuren. Op de eerste verdieping vinden we ook nog drie slaapkamers en een moderne badkamer. De fraai aangelegde tuin is lekker zonnig gelegen op het westen.
De wijk is rustig en kindvriendelijk en biedt diverse voorzieningen zoals scholen, winkels en sportfaciliteiten op korte afstand. Ook het treinstation Barendrecht is goed bereikbaar, wat een snelle verbinding naar Rotterdam en Dordrecht mogelijk maakt. De ligging nabij uitvalswegen (A29 & A15) zorgt voor een vlotte bereikbaarheid van de omliggende dorpen en steden.
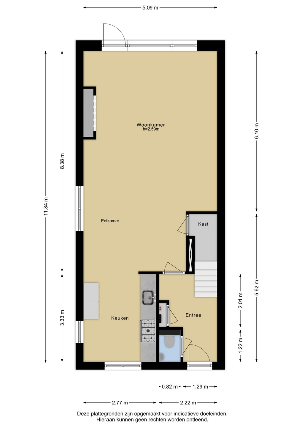
Begane grond
Via de verzorgde voortuin komt u binnen in de hal, voorzien van meterkast, toilet en trap naar boven. De woonkamer is afgewerkt met een warme parketvloer, hoge witte plinten, elegante plafondlijsten, strakke wandafwerking en stijlvolle deuren. Dankzij de hoekligging geniet de woonkamer van veel natuurlijke lichtinval via de ramen aan de zijkant van de woning. Tevens is er een handige trapkast met veel extra bergruimte. Een gave cinewall biedt plek voor een grote tv en een gashaard, wat een gezellige sfeer creëert. Vanuit de woonkamer is er directe toegang via een deur tot de achtertuin.
De open keuken is modern en praktisch ingericht met een wandopstelling voorzien van vaatwasser, 5-pits gasfornuis, vlakscherm afzuigkap, een quooker combi + kraan en een fraaie RVS achterwand. Een losse wandunit met een stoomoven en een combi-oven, koelkast en vriezer maakt het geheel compleet. De kasten zijn uitgevoerd in een lichte hoogglans tint en het geheel is afgewerkt met een mooi robuust werkblad. De raampartijen aan voor- en zijkant zorgen voor veel licht en geven de ruimte een uitnodigende uitstraling.
De achtertuin, gelegen op het zonnige westen, is zeer fraai aangelegd met mooie betegeling, diverse plantenbakken met sierbeplanting en een fijn zonnescherm. Hier kunt u heerlijk ontspannen en uw gasten ontvangen. Daarnaast is er een royale houten schuur en een achterom aanwezig voor extra gemak. Voor en naast de woning is er ruim voldoende parkeergelegenheid, waardoor u altijd makkelijk een parkeerplekje vind.
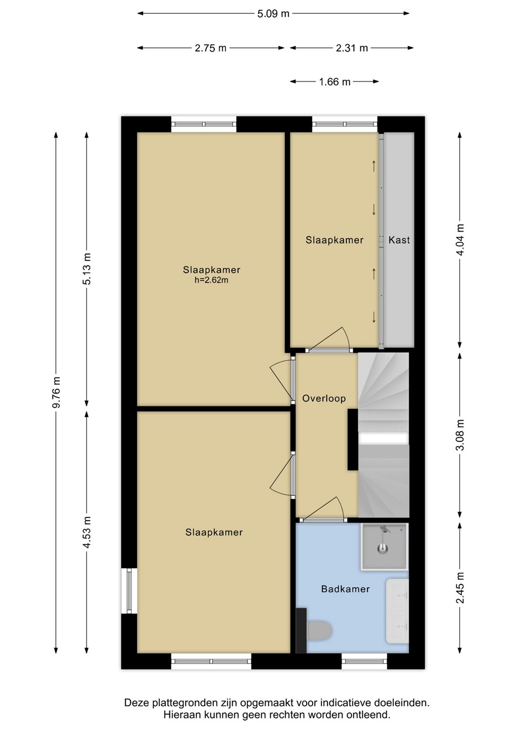
Eerste verdieping:
De eerste verdieping biedt drie ruime slaapkamers. Slaapkamer één bevindt zich aan de voorzijde en is ca. 12,5 m² groot. Aan de achterzijde liggen slaapkamer twee van ca. 14 m² en een derde slaapkamer met een schuifkastenwand van maar liefst ca. 4 meter breed, ideaal voor veel opbergruimte. De verdieping is voorzien van mooie laminaatvloeren en strak gestucte wanden, wat zorgt voor een frisse en moderne uitstraling.
De badkamer is stijlvol afgewerkt met een combinatie van witte en antracietkleurige tegels, doorlopend tot aan het plafond. Er is een raam wat zorgt voor natuurlijke ventilatie en een fijne lichtinval. De badkamer beschikt over een zwevend toilet, douchecabine, dubbele wastafel met meubel en verlichte spiegelkasten, waardoor u hier comfortabel kunt genieten van uw dagelijkse routine.
Tweede verdieping:
De tweede verdieping bestaat uit een open zolderruimte die momenteel in gebruik is als vierde slaapkamer. Een echte eyecatcher is de prachtige walk-in closet (2025), die samen met een berging met kastenwand zorgt voor veel opbergruimte. Tevens is hier de was- en droogapparatuur ,mooi weggewerkt.
De ruimte is voorzien van airconditioning en is zeer fraai afgewerkt met hoogwaardige materialen, wat de luxe uitstraling van de woning versterkt. In een kast is de cv-ketel opgesteld.
Bijzonderheden
- Gelegen op eigen grond;
- Bouwjaar 2008;
- EPA-Label A;
- Gebruiksoppervlakte wonen: ca. 150 m²
- Perceeloppervlakte: ca. 141 m²
- Meerdere ramen voorzien van rolluiken;
- Airconditioning;
- Instapklaar;
- Oplevering in overleg.
Toelichtingsclausule NEN2580
De Meetinstructie is gebaseerd op de NEN2580. De Meetinstructie is bedoeld om een meer eenduidige manier van meten toe te passen voor het geven van een indicatie van de gebruiksoppervlakte. De Meetinstructie sluit verschillen in meetuitkomsten niet volledig uit, door bijvoorbeeld interpretatieverschillen, afrondingen of beperkingen bij het uitvoeren van de meting.
Deze informatie is door ons met de nodige zorgvuldigheid samengesteld. Onzerzijds wordt echter geen enkele aansprakelijkheid aanvaard voor enige onvolledigheid, onjuistheid of anderszins, dan wel de gevolgen daarvan. Alle opgegeven maten en oppervlakten zijn indicatief.