Beschrijving

Let op!: Vanwege de enorme belangstelling voor de woning is het helaas niet meer mogelijk om een bezichtiging in te plannen. U kunt uiteraard wel uw gegevens achterlaten om op de reservelijst geplaatst te worden. Hartelijk dank voor uw begrip. 

In de geliefde en kindvriendelijke wijk Waterkant (Carnisselande, Barendrecht) ligt deze moderne en instapklare eengezinswoning aan een rustige straat. De zonnige achtertuin grenst direct aan een singel en biedt veel privacy. De groene, waterrijke omgeving beschikt over diverse speelplekken en wandelpaden op loopafstand. Ook de ligging is ideaal: nabij winkels, scholen, sportvoorzieningen en de sneltram richting Rotterdam. Via de A15 en A29 ben je bovendien uitstekend bereikbaar.

Indeling
Begane grond
Via de nette entreehal heeft u toegang tot de moderne toiletruimte, de trapopgang, meterkast en de ruime, lichte woonkamer met een lichte pvc vloer met hout motief. Aan de achterzijde zorgt de openslaande deur voor een directe verbinding met de zonnige tuin. Aan de voorzijde van de woning bevindt zich de open keuken met uitzicht op de rustige straat. De keuken is voorzien van diverse inbouwapparatuur, veel werkruimte en een strak design.

Eerste verdieping
Op deze verdieping bevinden zich drie slaapkamers, waaronder een royale hoofdslaapkamer met airconditioning. De moderne badkamer is voorzien van een ruime inloopdouche, een tweede toilet en een stijlvol wastafelmeubel.
Tweede verdieping
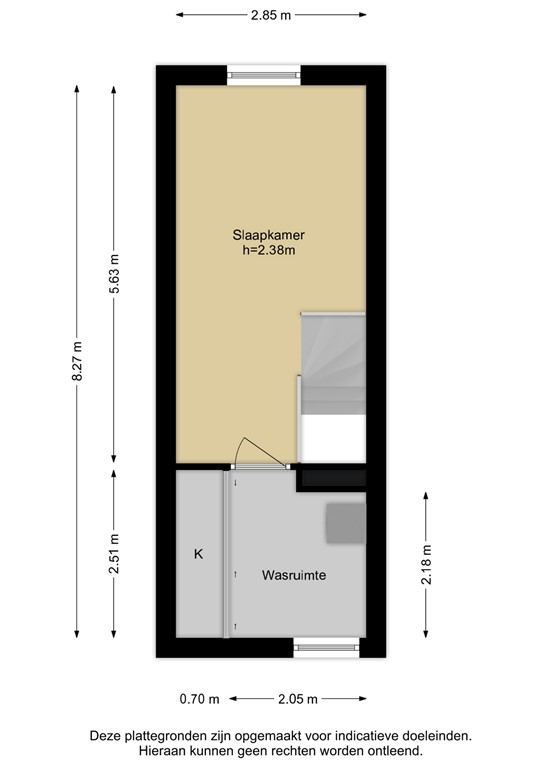
De volwaardige zolder biedt volop ruimte voor een extra slaapkamer, thuiswerkplek of hobbyruimte. Hier bevinden zich tevens de aansluitingen voor wasmachine en droger.

Buitenruimte
De onderhoudsvriendelijke achtertuin is grotendeels betegeld en beschikt over een houten berging. Aan de voorzijde bevindt zich nog een extra berging, ideaal voor het opbergen van fietsen of (tuin)gereedschap. Voor de woning is parkeergelegenheid in de straat.  

Bijzonderheden
•	Gelegen in een rustige en kindvriendelijke woonomgeving;
•	Airconditioning 2;
•	Electrische rolluiken;
•	Zonnige achtertuin aan het water;
•	Op loopafstand van winkels, scholen en openbaar vervoer;
•	Instap klaar en uitstekend onderhouden;
•	Oplevering voorkeur december 2025.

Kenmerken