Beschrijving

Dit prachtig gelegen TOP-hoekappartement blijft niet onopgemerkt! Het zeer verzorgde complex “Florida” is centraal gelegen aan de gewilde Vrijenburglaan in Barendrecht. De woning is de laatste woning aan de galerij en dat garandeert veel privacy. Door de ligging op de topverdieping van het complex heeft het appartement een fijn extraatje ten opzichte van de ondergelegen woningen; namelijk een geweldige zolder met een nokhoogte van maar liefst 2.35 meter! Verder beschikt het appartement over een nette keuken en badkamer, 2 fijne slaapkamers en een heerlijk terras gelegen op het zonnige zuiden! 

De centrale ligging van deze woning is top! Met tramlijn 25 op loopafstand bevindt u zich in een half uurtje in het centrum van Rotterdam. Voor de dagelijkse boodschappen is winkelcentrum Carnisse Veste snel bereikbaar. Tevens zijn diverse uitvalswegen binnen enkele autominuten aan te rijden.

Interesse? Wees er snel bij en maak een afspraak: 085-0044277

Begane grond
Entree met bellentableau, brievenbussen en toegang tot de lift, het trappenhuis en de bergingen.

Derde verdieping
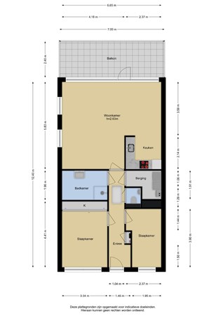
Via de overdekte galerij is de woning te betreden. De hal heeft ruimte voor de garderobe en geeft toegang tot alle vertrekken en de vlizotrap naar de bergzolder.

Slaapkamer één en twee zijn beiden aan de voorzijde van de woning gelegen. Slaapkamer één beschikt over een fijne vaste schuifkastenwand. De slaapkamers zijn gelegen aan de noordzijde waardoor deze in de zomer heerlijk koel blijven.

De badkamer is ruim opgesteld en voorzien van een douchecabine, een wastafelmeubel met spiegel, kastruimte en inbouwverlichting. De ruimte is tot aan het plafond toe betegeld in een lichte tint met sierstrip en wordt verwarmd middels een radiator.

De toiletruimte is geheel betegeld in dezelfde sfeer als de badkamer. Er is gebruik gemaakt van een closet en een fonteintje.

Naast het toilet bevindt zich de toegang tot de ruime berging. Ook deze ruimte is geheel betegeld wat erg prettig is omdat de opstelling van de was-apparatuur hier aanwezig is. Tevens is hier de mechanische ventilatie opgesteld en is er plaats voor een grote vriezer of extra koelkast.

Via de vlizotrap in de hal is de fijne bergzolder bereikbaar. Met een nokhoogte van maar liefst 2.35 meter kun je hier makkelijk staan en is er heel veel bergruimte. Deze ruimte is naar eigen wens in te delen; denk aan bijvoorbeeld een studeerkamer of logeerkamer. Ook is het mogelijk een vaste trap te plaatsen en door middel van het plaatsen van dakramen creëer je 20m² extra woonruimte!

De parel van deze woning is de heerlijk ruime woonkamer met toegang tot het terras. Aangezien de woning op de hoek is gelegen zijn er 2 extra ramen aan de zijgevel waardoor de woonkamer lekker licht is. Via een deur is het terras bereikbaar. Het ruime terras van 17 m² is zeer gunstig gelegen op het zonnige zuiden en ook hier weer is privacy gewaarborgd.

De keuken is geplaatst in een royale hoekopstelling en is uitgevoerd in een lichte tint met donker houtlook werkbladen. Er is gebruik gemaakt van diverse inbouwapparatuur zoals; een koelkast, combi oven, vaatwasser en een 5 pits inductiekookplaat met daarboven een vlakscherm afzuigkap. De achterwanden zijn geheel betegeld met Metro tegeltjes in een lichte kleur. 

De gehele woning is voorzien van een mooie doorgelegde laminaatvloer. Er is een aparte berging aanwezig in de onderbouw.

Bijzonderheden
- Gelegen op eigen grond;
- Bouwjaar 2006;
- EPA-Label A;
- Gebruiksoppervlakte wonen: ca. 83 m² + 20 m² overig inpandig;
- Riant terras van ca. 17 m²
- Eigen berging in onderbouw;
- Gezonde en actieve VvE; bijdrage ca. € 170,- p.m;
- Oplevering in overleg.

Kenmerken