Beschrijving
Deze exclusieve en royale hoekvilla is gelegen op een verkeersluw wooneiland in de geliefde wijk Carnisselande, waar enkel bestemmingsverkeer komt. Een veilige en rustige woonomgeving, ideaal voor gezinnen. Op loopafstand vindt u het winkelcentrum Carnisse Veste, diverse basisscholen en een medisch centrum. Het openbaar vervoer is uitstekend geregeld: de tram brengt u in korte tijd naar Rotterdam Centrum en Centraal Station, en er zijn goede busverbindingen.
Indeling
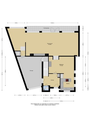
Bij binnenkomst betreedt u een ruime hal met een modern, zwevend toilet met fonteintje, meterkast en inpandige garage. Vanuit de hal bereikt u de woonkeuken, en de lager gelegen woonkamer in splitlevel-opstelling.
De lichte woonkamer is voorzien van een fraaie plavuizen vloer met vloerverwarming en een indrukwekkende gashaard van 2,5 meter breed, geïntegreerd in de wand met TV-opstelling. Via schuifpuien bereikt u de ruime tuin aan het water, inclusief overkapping.
Aansluitend aan de woonkamer vindt u een multifunctionele kamer, momenteel in gebruik als kantoor, maar kan ook perfect als hobbyruimte of speelkamer functioneren.
De woonkeuken aan de voorzijde is uitgevoerd in lichte tinten met een granieten werkblad en voorzien van alle benodigde inbouwapparatuur: keramische kookplaat, RVS afzuigkap, vaatwasser, koelkast en vriezer.
De ruime garage beschikt over een elektrische deur, een aparte wasruimte, en een onderhoudsvriendelijke vloer die bestand is tegen olie en chemicaliën.
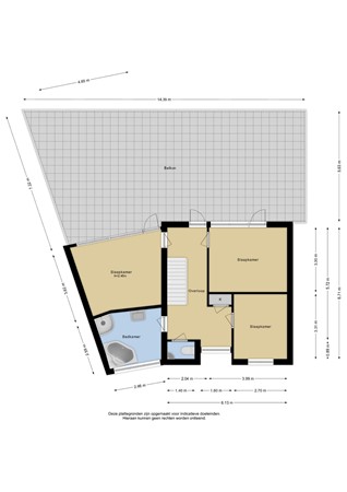
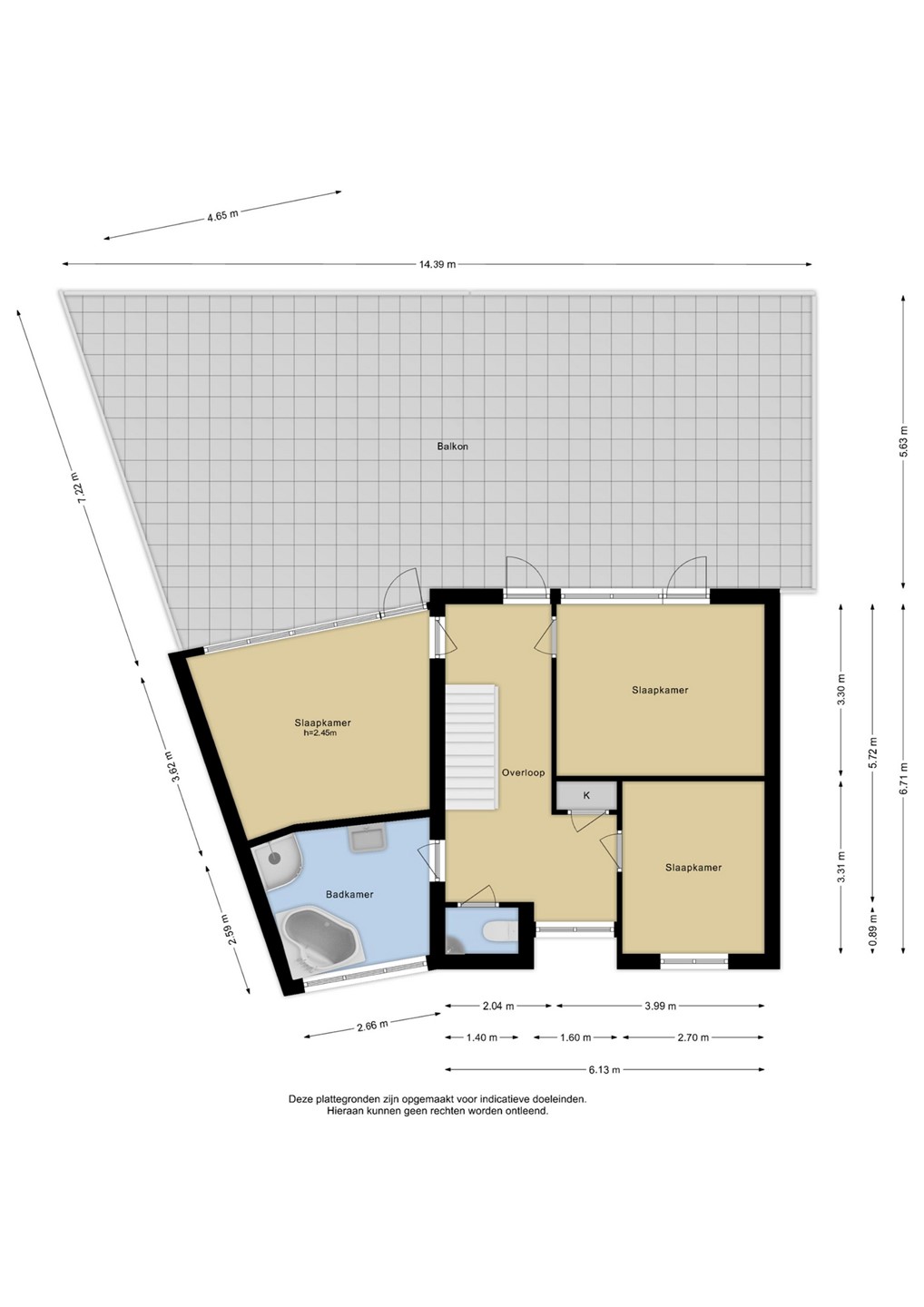
Eerste verdieping
De overloop is ruim opgezet met een zwevend toilet, hoge raampartijen en toegang tot het eerste dakterras. Aan de achterzijde bevinden zich twee slaapkamersmet directe toegang tot het terras. Aan de voorzijde ligt een derde slaapkamer met openslaande deuren naar een sfeervol Frans balkon.
De badkamer is volledig betegeld en voorzien van een inloopdouche, jacuzzi, dubbele wastafel met meubel en een radiator.
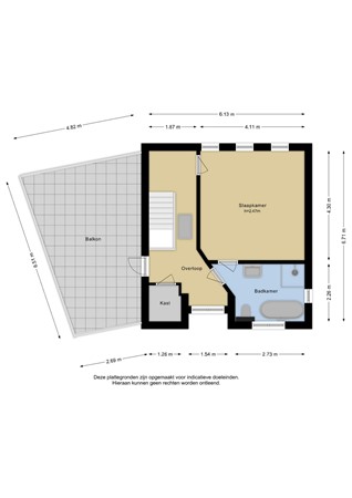
Tweede Verdieping
Op deze verdieping bevindt zich een extra slaapkamer met een ensuite badkamer, voorzien van een douche, ligbad en een wastafelmeubel. Vanuit de overloop heeft u toegang tot het tweede dakterras. Een uitschuifbare zoldertrap geeft u toegang tot de vliering op deze etage.
Souterrain
De volledig onderkelderde verdieping is bereikbaar via de garage. Deze ruimte is momenteel ingericht als hobbyruimte en beschikt over een eigen bar en keuken. Een vaste kastenwand biedt volop bergruimte.
Bijzonderheden
• Twee dakterrassen en tuin aan het water
• Inpandige garage
• Grote onder kelderde verdieping
• Gunstige ligging t.o.v. OV, winkels en scholen
• De opgegeven maten zijn bij benadering i.v.m. schuine wanden in de woning
• Energielabel B
• Oplevering in overleg