Beschrijving

Dé ultieme woonplek voor de natuurliefhebber! Deze geschakelde twee-onder-één-kapwoning met garage en parkeergelegenheid voor maar liefst twee auto’s op eigen terrein is met twee rechterhanden en een dosis liefde om te toveren naar een fantastische gezinswoning! Op dit moment beschikt de woning over 2 royale slaapkamers en een grote open ruimte op de zolder, een nette keuken en badkamer en een tuinkamer aan de achterzijde met ruimte voor kantoor of slaapkamer!

Interesse? Logisch! Wacht niet te lang, plan direct een bezichtiging in via 085-0044277.

De woning is zeer gunstig gelegen aan het einde van de straat in de leuke “Bomenbuurt”. Het prachtige natuurgebied “De Rottemeren” is te vinden op een steenworp afstand maar de woning is ook centraal gelegen ten opzichte van diverse voorzieningen zoals basisscholen, de dorpskern met diverse winkels, supermarkten en detailhandel. Via de N209 is de snelweg A12 binnen enkele minuten aan te rijden waardoor omliggende grote steden en dorpen goed bereikbaar zijn.

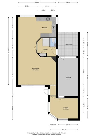
Begane grond
Via de betegelde oprit is de woning te betreden. De voordeur onder de overkapte entree leidt u naar de hal waar we de toiletruimte en de opstelling van de meterkast vinden. Tevens is er toegang tot de woonkamer via een mat glazen deur en toegang tot de eerste verdieping via de open wenteltrap. 

De garage heeft capaciteit voor één auto en is toegankelijk via een handbediende kanteldeur waarin een reguliere deur verwerkt is. Aan de achterzijde geeft de garage toegang tot de tuinkamer.

De toiletruimte is geheel betegeld met een kleine witte tegel op de wand en een grotere witte vloertegel. Er is gebruik gemaakt van een closet en een fonteintje.

De tuingerichte doorzonwoonkamer heeft fijn lichtinval door de grote raampartijen aan de voor- en achterzijde van de ruimte. De sfeervolle open haard is het middelpunt van het zitgedeelte. Er is een kamerhoge aluminium schuifpui met toegang tot de achtertuin aanwezig en via het naastgelegen halletje is er toegang tot een extra kamer welke gebruikt kan worden voor diverse doeleinden. Denk aan; een kantoor aan huis of een extra slaapkamer. De hal geeft tevens toegang tot de achtertuin. In de kamer is een deur naar de garage aanwezig. 

De achtertuin is zeer gunstig gelegen op het zonnige zuidwesten en heeft een prachtig zicht over het achtergelegen water en het natuurgebied. De tuin heeft wat liefde en verzorging nodig waarna het hier heerlijk genieten is van de rust en de natuur. De zon schijnt er prachtig tot in de late uren.

De landelijke keuken is gelegen aan de voorzijde van de woning, is opgesteld in een ruime U-vorm en uitgevoerd in een mooie antracietgrijze tint. De keuken bezit een 5-pits gasfornuis met RVS afzuigkap, een combimagnetron en een vaatwasser. Er is voldoende bergruimte door middel van diverse kasten en laden en de koel/vriescombinatie. Het geheel is afgewerkt met riante betonlook werkbladen en achterwanden.  
De begane grond is voorzien van een witte tegelvloer.

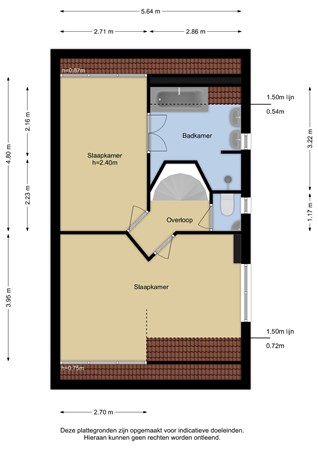
Eerste verdieping
De overloop geeft toegang tot de twee slaapkamers en de separate toiletruimte. Tevens is hier de trapopgang naar de zolder te vinden.

Slaapkamer één is gelegen aan de voorzijde van de woning en heeft via Louvre deurtjes toegang tot de royale en suite badkamer. De kamer is voorzien van vloerbedekking en een lichte wandafwerking.

De badkamer is geheel betegeld met natuurstenen vloer- en wandtegels en heeft de beschikking over een inloopdouche, een ligbad en een dubbele wastafel met meubel en spiegel. De ruimte wordt verwarmd middels een radiator en heeft natuurlijke ventilatie door het aanwezige raam.

De royale tweede slaapkamer is gelegen aan de tuinzijde van de woning en is voorzien van een nette laminaatvloer en dito wandafwerking. Tevens zijn er elektrische rolluiken aanwezig. Eventueel zou deze ruimte ook gesplitst kunnen worden in twee separate slaapkamers.

Tweede verdieping
Via de trap is de grote open zolderruimte bereikbaar welke is voorzien van een lichte laminaatvloer en een dakraam. Door de nokhoogte van maar liefst 3 meter is hier een volwaardige slaapkamer mogelijk. 

De deur geeft toegang tot de separate berging waar de opstelling van de cv-ketel (AWB 2003), de wasapparatuur en de mechanische ventilatie te vinden zijn. Tevens is er een praktische wastafel aanwezig.

Bijzonderheden
- Gelegen op eigen grond;
- Bouwjaar ca. 1984;
- EPA-Label C;
- Gebruiksoppervlakte wonen: ca. 136 m²
- Perceeloppervlakte: ca. 290 m²
- Geen vragenlijst of lijst van zaken aanwezig;
- Notariskeuze aan verkoper;
- Oplevering in overleg.

Toelichtingsclausule NEN2580
De Meetinstructie is gebaseerd op de NEN2580. De Meetinstructie is bedoeld om een meer eenduidige manier van meten toe te passen voor het geven van een indicatie van de gebruiksoppervlakte. De Meetinstructie sluit verschillen in meetuitkomsten niet volledig uit, door bijvoorbeeld interpretatieverschillen, afrondingen of beperkingen bij het uitvoeren van de meting.

Deze informatie is door ons met de nodige zorgvuldigheid samengesteld. Onzerzijds wordt echter geen enkele aansprakelijkheid aanvaard voor enige onvolledigheid, onjuistheid of anderszins, dan wel de gevolgen daarvan. Alle opgegeven maten en oppervlakten zijn indicatief.

Gezien het bouwjaar van de woning zal er een ouderdoms- en asbestclausule worden opgenomen.
Ook zal een niet-zelfbewoningsclausule worden opgenomen, daar de verkoper de woning nooit bewoond heeft.

Kenmerken