Beschrijving
Aan de karakteristieke Krommedijk in Dordrecht ligt deze sfeervolle en rustige woonlocatie, omgeven door een groene en aangename leefomgeving met alle voorzieningen binnen handbereik.
Winkels, scholen en openbaar vervoer bevinden zich in de directe omgeving en ook het centrum van Dordrecht is op korte afstand gelegen.
Indeling
Begane grond
Via de entree bereikt u de hal met meterkast, toilet, trapopgang naar de eerste verdieping en toegang tot het souterrain, de inpandige garage, de woonkamer en de keuken. De lichte doorzon woonkamer is voorzien van een waterbestendige laminaatvloer en een pelletkachel, wat zorgt voor een warme en gezellige sfeer. Vanuit de eethoek bereikt u de halfopen keuken. In 2024 is hier het kozijn vernieuwd en de wand aangepast na het verwijderen van een deur.
Vanuit de woonkamer heeft u toegang tot het balkon met trap naar de achtertuin op souterrainniveau.
Eerste verdieping
De overloop geeft toegang tot vier slaapkamers en de badkamer:
• Slaapkamer 1 aan de voorzijde met balkon
• Slaapkamer 2 aan de voorzijde met toegang tot de zolderverdieping, momenteel in gebruik als thuiskantoor
• Slaapkamer 3 aan de achterzijde, grote slaapkamer
• Slaapkamer 4 aan de achterzijde, geschikt als kinder-, logeer- of hobbykamer
De moderne badkamer is gerealiseerd in een voormalige slaapkamer en beschikt over een tweede toilet, regendouche en wastafelmeubel.
De oorspronkelijke badkamer is in 2022 omgebouwd tot extra slaapkamer.
Zolderverdieping
Ruime (slaap)kamer met dakkapel, die zorgt voor veel lichtinval en een prettige, open sfeer. Deze verdieping is uitermate geschikt als extra slaapkamer, werkruimte of hobbykamer. Tevens bevindt zich hier een berging met opstelling van de cv-ketel.
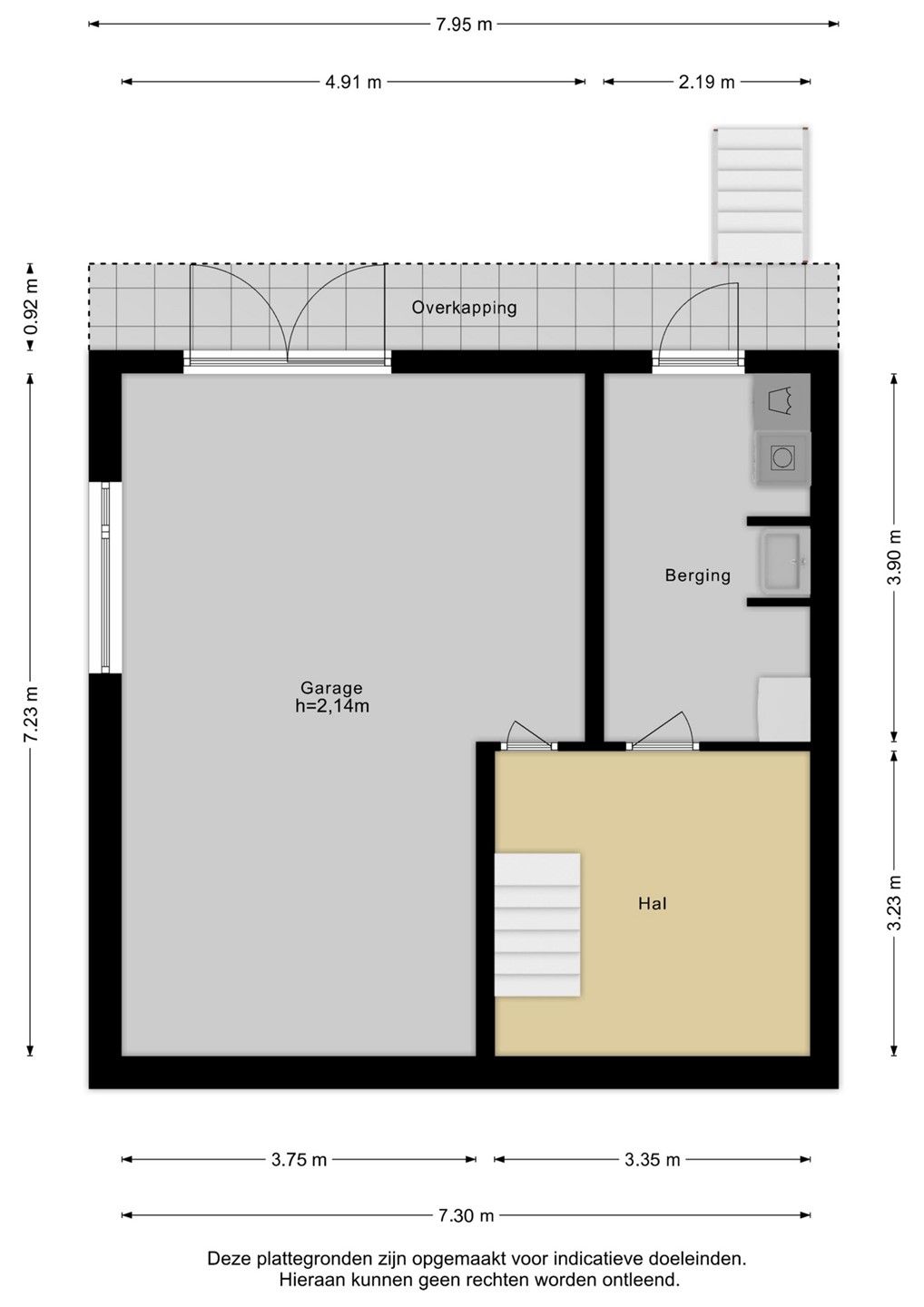
Souterrain
Praktisch ingedeeld met meerdere bergruimtes, een aparte wasruimte met wastafel en toegang tot de achterzijde. Vanuit het souterrain bereikt u tevens de ruime inpandige garage met openslaande deuren.
Tuin
De woning beschikt over een zonnige voortuin op het zuiden, waar je de hele dag kunt genieten van de zon. Aan de achterzijde ligt een tweede buitenruimte, bereikbaar via zowel het balkon als het souterrain. Deze ruimte wordt momenteel gebruikt als achtertuin, maar biedt de mogelijkheid om in te richten als oprit voor twee auto’s.
Bijzonderheden
• Bouwjaar 1960
• Karakteristieke 2-onder-1-kapwoning
• Souterrain met inpandige garage
• Maar liefst vijf slaapkamers
• Speelse indeling en veel lichtinval
• Oplevering in overleg