Beschrijving

Welkom aan het Eiberplantsoen 47 in Groot-Ammers – een heerlijke plek om thuis te komen. Deze uitgebouwde eindwoning is voorzien van 10 zonnepanelen, maar liefst 5 slaapkamers, een moderne keuken en badkamer en is gelegen in een rustige, kindvriendelijke woonwijk met veel groen en speelvoorzieningen in de directe omgeving. Hier woon je in alle rust, met alle dagelijkse voorzieningen binnen handbereik.

Interesse? Logisch! Wacht niet te lang, plan direct een bezichtiging in via 085-0044277.

De woning bevindt zich in een prettige buurt met voornamelijk bestemmingsverkeer, wat zorgt voor een veilige en ontspannen woonomgeving. Op korte afstand vind je diverse winkels voor de dagelijkse boodschappen in het dorpscentrum van Groot-Ammers. Ook zijn er meerdere basisscholen en kinderopvanglocaties in de nabije omgeving, ideaal voor (jonge) gezinnen.

De bereikbaarheid is uitstekend. Met goede busverbindingen in de buurt ben je eenvoudig onderweg richting omliggende plaatsen. Daarnaast zorgen de nabijgelegen uitvalswegen, zoals de N214 en de N216, voor een snelle verbinding naar steden als Gorinchem, Rotterdam en Utrecht.

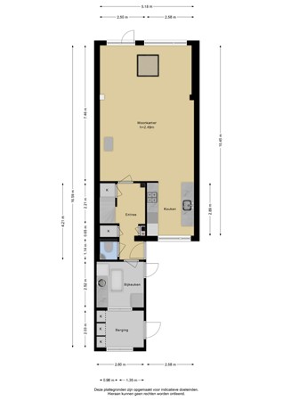
Begane grond
Via de verzorgde voortuin bereik je de entree. In de hal vind je het moderne toilet, de trap naar de verdieping met daaronder een praktische trapkast, een aparte bergkast en de meterkast. 

Vanuit hier loop je door naar de woonkamer, maar ook naar de bijkeuken aan de voorzijde. Deze bijkeuken is zowel binnendoor als van buitenaf bereikbaar en vormt een ideale multifunctionele ruimte. Er is een extra keukenblok met wasbak en kraan aanwezig, ruimte voor een extra koelkast en via een vlizotrap bereik je een handige bergzolder. Aansluitend bevindt zich een berging die uitsluitend van buitenaf toegankelijk is en is voorzien van een vaste kastenwand – perfect voor extra opslag.

De woonkamer is aan de achterzijde royaal uitgebouwd, wat zorgt voor een heerlijke leefruimte met veel licht. Het strak afgewerkte plafond met inbouwspots geeft een moderne uitstraling en het dakraam in de uitbouw zorgt voor extra daglicht. Dankzij de vloerverwarming is het hier altijd comfortabel, terwijl de houtkachel extra sfeer en warmte brengt tijdens de koudere maanden. De begane grond is afgewerkt met een mooie plavuizen vloer in warme bruintinten, wat het geheel een stijlvolle en rustige basis geeft.
De keuken is uitgevoerd in een parallelle opstelling en heeft een moderne, frisse uitstraling dankzij de combinatie van hoogglans witte kasten, houtlook accenten en composiet werkbladen. De keuken is compleet uitgerust met Siemens apparatuur, waaronder een combi stoomoven, een grote oven, een vijfpits gasfornuis met RVS afzuigkap, “Quooker” kraan, vaatwasser en een koelkast. Het grote raam aan de voorzijde zorgt voor prettig licht tijdens het koken.

Vanuit de woonkamer stap je de fraai aangelegde achtertuin in, gelegen aan het water. De tuin is netjes betegeld en biedt achterin een sfeervolle overkapping waar je een heerlijk zitje kunt creëren. Een prachtige plek om te ontspannen en te genieten van lange zomeravonden. Naast de woning vinden we een gedeelde afgesloten poort waardoor je de achtertuin buitenom kunt benaderen. Hier kunnen ook de containers en het tuingereedschap uit het zicht gezet worden. 

Eerste verdieping
Op de eerste verdieping kom je op een overloop met praktische schuifwandenkasten en een extra bergkast. 
Hier bevinden zich de ouderslaapkamer aan de voorzijde en twee slaapkamers aan de achterzijde. 

De badkamer is stijlvol en zeer compleet uitgevoerd met houtlook tegels in combinatie met lichte wandtegels. Je beschikt hier over een ligbad, inloopdouche, wandcloset, wastafelmeubel met spiegelkast en een designradiator. Het plafond met inbouwspots maakt het geheel strak en modern.

Tweede verdieping
De tweede verdieping verrast opnieuw met ruimte. De overloop met dakraam geeft toegang tot twee royale slaapkamers, beide voorzien van een dakkapel en vaste kasten. Ideaal als extra slaapkamers, werkruimte of hobbykamer.
Kortom, een instapklare en verrassend ruime woning met vijf slaapkamers, veel bergruimte, moderne afwerking en een prachtige ligging aan het water in het gezellige Groot-Ammers. Een huis dat je echt van binnen moet ervaren.

Bijzonderheden
- Gelegen op eigen grond;
- Bouwjaar 1981;
- EPA-Label B;
- Voorzien van 10 zonnepanelen met Enphase omvormers. Hierdoor geen grote omvormer in of aan het huis. (Veiliger systeem);
- Gebruiksoppervlakte wonen: ca. 127 m²
- Perceeloppervlakte: ca. 190 m²
- Oplevering in overleg.

Toelichtingsclausule NEN2580
De Meetinstructie is gebaseerd op de NEN2580. De Meetinstructie is bedoeld om een meer eenduidige manier van meten toe te passen voor het geven van een indicatie van de gebruiksoppervlakte. De Meetinstructie sluit verschillen in meetuitkomsten niet volledig uit, door bijvoorbeeld interpretatieverschillen, afrondingen of beperkingen bij het uitvoeren van de meting.

Deze informatie is door ons met de nodige zorgvuldigheid samengesteld. Onzerzijds wordt echter geen enkele aansprakelijkheid aanvaard voor enige onvolledigheid, onjuistheid of anderszins, dan wel de gevolgen daarvan. Alle opgegeven maten en oppervlakten zijn indicatief.

Gezien het bouwjaar van de woning zal er een ouderdoms- en asbestclausule worden opgenomen.

Kenmerken