Beschrijving

Aan de rustige Meeuwenlaan in Groot-Ammers bevindt zich deze verzorgde en ruime woning die direct een gevoel van thuis oproept. De woning is keurig onderhouden en biedt een comfortabele indeling met veel licht, praktische ruimtes en een nagenoeg onderhoudsvriendelijke tuin.

Interesse? Logisch! Wacht niet te lang, plan direct een bezichtiging in via 085-0044277.

Gelegen in een rustige en kindvriendelijke woonwijk biedt de Meeuwenlaan 11 in Groot-Ammers een fijne combinatie van dorps wonen en alle voorzieningen dichtbij. Op loop- en fietsafstand vindt u winkels voor de dagelijkse boodschappen, basisscholen, kinderopvang en sportverenigingen. Ook zijn er diverse horecagelegenheden en groene speelplekken in de buurt. De omgeving is omringd door polderlandschap en de rivier de Lek, ideaal voor wandelen en fietsen. Groot-Ammers heeft goede verbindingen richting Schoonhoven, Nieuw-Lekkerland en Gorinchem, en via de N216 bent u snel in Rotterdam of Utrecht. Het OV is goed geregeld met busverbindingen naar de omliggende plaatsen. 

Kortom: een prettige, groene woonomgeving met alle gemakken binnen handbereik.

Begane grond
Bij binnenkomst in de hal vindt u de entree met toegang tot de meterkast, de toiletruimte, de trapkast, de keuken en de woonkamer. Tevens is hier ruimte voor een garderobe. 

De toiletruimte is half betegeld en voorzien van een modern wandcloset. 

De woonkamer ligt aan de tuinzijde en is uitgevoerd met een plavuizen vloer in een lichte tint. Dankzij de grote raampartijen is het hier heerlijk licht, en via de deur bereikt u direct de achtertuin.

De keuken bevindt zich aan de voorzijde van de woning en is uitgevoerd in een royale hoekopstelling. De vanillekleurige kastfronten combineren mooi met de stenen werkbladen, wat zorgt voor een warme, eigentijdse uitstraling. De betegelde achterwanden en de nette afwerking maken het geheel compleet. De keuken beschikt over diverse inbouwapparatuur, waaronder een vaatwasser, inductiekookplaat, 1,5e spoelbak en een combimagnetron. Er is bovendien veel praktische kastruimte aanwezig.

De achtertuin is volledig betegeld en daardoor nagenoeg onderhoudsvrij. Hier kunt u optimaal genieten van de zon en het buitenleven door de ligging op het noorden. Achterin de tuin staat een stenen berging, en via de achterom is de tuin ook vanaf buiten bereikbaar.

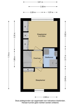
Eerste verdieping
Op de eerste verdieping bevinden zich twee royale slaapkamers, waarvan één aan de voorzijde en één aan de achterzijde. De kamer aan de voorzijde is voorzien van een vaste kast, terwijl de kamer aan de achterzijde beschikt over een praktische inbouw schuifkastenwand. 

De badkamer is zeer netjes afgewerkt en voorzien van een douchecabine, wastafel met meubel en kast, en de opstelling voor de wasmachine. De betegeling tot aan het plafond in een grijs-wit kleurstelling en de houtlook kasten geven de ruimte een frisse en moderne uitstraling.

Tweede verdieping
De tweede verdieping biedt een ruime zolder met dakraam en een extra slaapkamer met dakkapel. Deze ruimte is ideaal te gebruiken als logeerkamer, werkkamer of hobbyruimte. 

Tevens biedt de zolder ruimte aan de opstelling van de cv-ketel en de heteluchtverwarming.

Bijzonderheden
- Gelegen op eigen grond;
- Bouwjaar 1983;
- EPA-Label C;
- Gebruiksoppervlakte wonen: ca. 92 m²
- Perceeloppervlakte: ca. 100 m²
- Oplevering in overleg.

Toelichtingsclausule NEN2580
De Meetinstructie is gebaseerd op de NEN2580. De Meetinstructie is bedoeld om een meer eenduidige manier van meten toe te passen voor het geven van een indicatie van de gebruiksoppervlakte. De Meetinstructie sluit verschillen in meetuitkomsten niet volledig uit, door bijvoorbeeld interpretatieverschillen, afrondingen of beperkingen bij het uitvoeren van de meting.

Deze informatie is door ons met de nodige zorgvuldigheid samengesteld. Onzerzijds wordt echter geen enkele aansprakelijkheid aanvaard voor enige onvolledigheid, onjuistheid of anderszins, dan wel de gevolgen daarvan. Alle opgegeven maten en oppervlakten zijn indicatief.

Gezien het bouwjaar van de woning zal er een ouderdoms- en asbestclausule worden opgenomen.

Kenmerken