Beschrijving

In het prachtige dorp Hardinxveld-Giessendam bieden wij deze speels ingedeelde eengezinswoning aan! De woning is zeer gunstig gelegen in een fijne en kindvriendelijke woonwijk. De woning beschikt over een royale benedenverdieping en 4 (met de mogelijkheid tot 5) ruime slaapkamers.

Parkeergelegenheid is er voldoende voor de deur evenals een gezellig klein speeltuintje. Het sfeervolle centrum is op loopafstand gelegen en geeft toegang tot diverse supermarkten en praktische winkeltjes voor de dagelijkse boodschap en meer. Ook scholen en opvang zijn in de nabije omgeving te vinden. De bereikbaarheid van omliggende steden is meer dan prima te noemen; binnen enkele autominuten bevindt u zich op de A15 of het treinstation. 

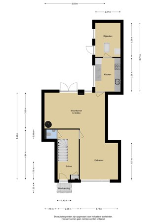
Begane grond
Via de riante voortuin, welke met veel zorg is aangelegd, is de woning te betreden. De ruimtelijke hal geeft toegang tot de garderobe, de vernieuwde meterkast, de toiletruimte en de woonkamer. Via de open trap is de eerste verdieping te bereiken.

De toiletruimte is geheel betegeld in een lichte kleurstelling en voorzien van een closet en fonteintje.
Je betreedt de Z-vormige doorzonwoonkamer in het midden. Aan de achterzijde vind je de knusse tuingerichte woonkamer. De absolute eyecatcher van deze ruimte is de fraaie houthaard! Deze kachel staat garant voor sfeer en gezelligheid. Via dubbele openslaande deuren is de achtertuin bereikbaar.

Aan de voorzijde van de woning is nu het eetgedeelte gecreëerd. Hier dineert u heerlijk rustig met uitzicht op de fijne, groene voortuin.

De landelijke keuken is aan de achterzijde van de woning opgesteld en geeft ook nog eens toegang tot de bijkeuken. De wandopstelling is uitgevoerd in gebroken wit en is voorzien van veel kastruimte boven en beneden. Koken gebeurt op het 4-pits gasfornuis met afzuiglade en in de heteluchtoven terwijl de vaatwasser zijn werk doet. De koelkast en vriezer zijn geplaatst aan de overzijde. Tevens is hier een gezellig zitje aan het raam waar je even snel je ontbijt kunt nuttigen. Door de grote raampartij is er fijne lichtinval aanwezig.

De bijkeuken is afsluitbaar d.m.v. een deur en geeft ruimte aan bijvoorbeeld een extra koelkast en de was- en droogapparatuur. Via een deur is ook hier vandaan de achtertuin te betreden. De ruimte is volledig geïsoleerd en voorzien van elektriciteit en verwarming. Via een ladder is de bergzolder bereikbaar.

De gehele begane grond is voorzien van een nette PVC-vloer (2010) en de wanden gespoten. In de woonhoek is de schoonmetselwerk geschilderd in een lichtgroene ofwel antiek groene kleur.

De achtertuin is gelegen op het oosten en voorzien van nette betegeling over de gehele oppervlakte. Door de prachtig volle haag geniet u hier optimaal van uw privacy. Er is een praktische opslag voor het haardhout aangebracht, de grote houten schuur geeft extra bergruimte en de tuin is bereikbaar via een achterom. 

Eerste verdieping
De overloop geeft toegang tot de slaapkamers, de badkamer, het separate toilet en de berging.

Slaapkamer één is gelegen aan de achterzijde van de woning en neemt de volle breedte van de woning in. Deze kamer is eventueel te splitsen in twee slaapkamers. De slaapkamer aan de voorzijde is voorzien van een handige inloopkast.

De nette badkamer is geheel betegeld in een lichte tint en heeft donkere vloertegels. De ruimte is voorzien van een breed badmeubel en spiegel en een ligbad met douchegelegenheid. Het spatscherm zorgt ervoor dat de ruimte niet nat wordt. De badkamer wordt verwarmd door de designradiator en heeft natuurlijke ventilatiemogelijkheden door middel van het aanwezige raam.

Extra bergruimte is er door de aanwezige bergkast op de overloop.

Fijn is de separate toiletruimte op deze verdieping. Er is gebruik gemaakt van betegeling tot aan het plafond in een lichte tint en een speelse tegelvloer in lichtgroen/ groen.

Tweede verdieping
Via de overloop zijn slaapkamer drie en vier te betreden. Beide slaapkamers zijn voorzien van een dakkapel en daardoor echt volwaardige kamers. De slaapkamers zijn aangekleed met behangwanden en vloerbedekking en hebben extra opbergmogelijkheden door de aanwezige knieschotten. De dakkapellen zijn voorzien van rolluiken.

Via een deur in slaapkamer vier is de technische ruimte toegankelijk. Hier is de opstelling van de “Intergas” CV ketel (2013) gesitueerd. 

De gehele woning is voorzien van hoogwaardige kunststof kozijnen met dubbele beglazing.

Bijzonderheden
- Gelegen op eigen grond;
- Bouwjaar 1980;
- EPA-Label A;
- Gebruiksoppervlakte wonen: ca. 146 m²;
- Perceeloppervlakte: 175 m²;
- Volledig voorzien van kunststof kozijnen en dubbele beglazing;
- Begane grond en eerste verdieping voorzien van screens;
- Twee ruime dakkapellen;
- Oplevering eerste kwartaal 2025.

Toelichtingsclausule NEN2580
De Meetinstructie is gebaseerd op de NEN2580. De Meetinstructie is bedoeld om een meer eenduidige manier van meten toe te passen voor het geven van een indicatie van de gebruiksoppervlakte. De Meetinstructie sluit verschillen in meetuitkomsten niet volledig uit, door bijvoorbeeld interpretatieverschillen, afrondingen of beperkingen bij het uitvoeren van de meting.

Deze informatie is door ons met de nodige zorgvuldigheid samengesteld. Onzerzijds wordt echter geen enkele aansprakelijkheid aanvaard voor enige onvolledigheid, onjuistheid of anderszins, dan wel de gevolgen daarvan. Alle opgegeven maten en oppervlakten zijn indicatief.

Gezien het bouwjaar van de woning zal er een ouderdoms- en asbestclausule worden opgenomen.

Kenmerken