Beschrijving
Bent u op zoek naar een keurig afgewerkt appartement met een royale woonkamer, veel lichtinval en een schitterend uitzicht? Dan is dit 2-kamerappartement op een rustige en groene locatie in Rhoon absoluut het bezichtigen waard!
Het appartement is gelegen op het geliefde eiland Paarlemoer in de moderne wijk Portland. Een rustige en verzorgde woonomgeving, omringd door groen, water en wandelmogelijkheden. In de directe nabijheid vindt u een wijkwinkelcentrum voor de dagelijkse boodschappen.
Indeling
Begane grond
Via de centrale entree van het kleinschalige complex komt u in de nette, betegelde hal met bellentableau, intercom, postbussen, trappenhuis en liftinstallatie. De algemene ruimtes zijn verzorgd en ruim opgezet.
Eerste verdieping
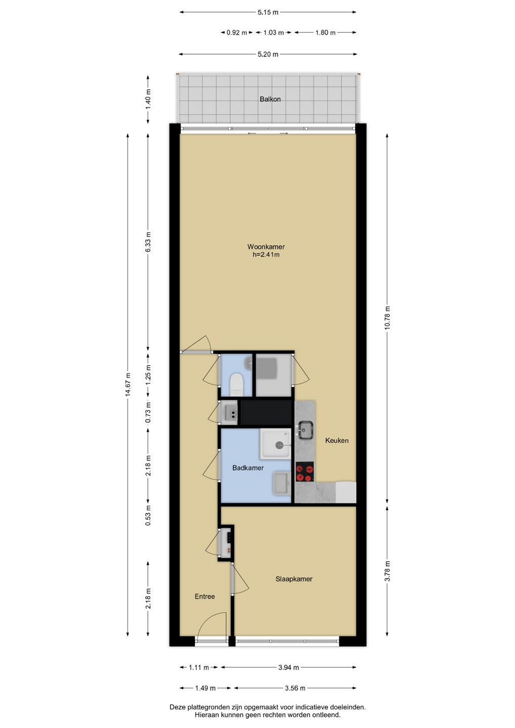
U betreedt het appartement via een ruime entreehal die toegang biedt tot alle vertrekken. Aan de voorzijde bevindt zich de slaapkamer, voorzien van een groot raam met veel lichtinval en een handige inbouwkast. In de hal vindt u verder een meterkast, een aparte CV-kast en de badkamer, compleet betegeld en ingericht met een douchecabine en wastafelmeubel.
De woonkamer is absoluut het hart van deze woning: een royale, lichte ruimte , met een gevelbrede glazen pui en een prachtig uitzicht op het achtergelegen water en natuur. De woonkamer staat in directe verbinding met het zonnige balkonterras, bereikbaar via een schuifpui. Het terras is afgewerkt met hardhouten vloerdelen en vormt een heerlijke plek om te ontspannen.
De halfopen keuken grenst aan de woonkamer en is modern afgewerkt in een hoekopstelling. De keuken is voorzien van complete inbouwapparatuur: een koel-/vriescombinatie, vaatwasser, 4-pits keramische kookplaat, combi-magnetron en voldoende kastruimte.
Bijzonderheden van deze woning
• Rustige ligging op het eiland Paarlemoer in Rhoon – Portland;
• Groot balkon met fraai uitzicht over water en natuurpark;
• Goed onderhouden 2-kamerappartement;
• Volledig geïsoleerd: dak-, vloer- en gevelisolatie, dubbel glas;
• Verwarming en warm water via CV-combiketel;
• Maandelijkse Vve-bijdrage: €106,31;
• Oplevering in overleg.