Beschrijving
Aan de rustige Bouwlust, in de geliefde wijk De Eilanden, ligt deze stijlvolle twee-onder-één-kapwoning met garage, oprit en een droomligging direct aan het water. Deze parel is voorzien van 5 ruime slaapkamers, 2 badkamers, zonnepanelen (2025) en een afwerking van deze tijd. Een sfeervol en energiezuinig huis waar comfort, stijl en waterbeleving perfect samenkomen – en waar zelfs de kunststof boot achterblijft voor de nieuwe bewoners.
Interesse? Logisch! Wacht niet te lang, plan direct een bezichtiging in via 085-0044277.
Voor de dagelijkse boodschappen zijn er diverse supermarkten en buurtwinkels in de directe omgeving (Hof van Portland en Carnisseveste). Gezinnen profiteren hier van een compleet aanbod aan scholen en kinderopvang op korte afstand. Sportclubs en verenigingen liggen eveneens dichtbij, waardoor deze wijk ideaal is voor gezinnen en actieve bewoners. Recreatiemogelijkheden liggen letterlijk om de hoek! De bereikbaarheid is uitstekend. Uitvalswegen zoals de A15 en A29 liggen op korte rijafstand, waardoor steden als Rotterdam, Dordrecht en Barendrecht snel bereikbaar zijn. Voor wie het openbaar vervoer prefereert, zijn buslijnen en metrostations eenvoudig bereikbaar, waardoor u ook zonder auto vlot in de regio bent.
Begane grond
De eigen oprit biedt parkeergelegenheid op eigen terrein en toegang tot de garage met elektrische sectionaaldeur. Via de entree komen we in de hal, hier bevinden zich het moderne, volledig betegelde toilet met wandcloset en fonteintje, de trapopgang naar boven, een praktische bergkast en toegang tot de woonkamer.
De woonkamer is gelegen aan de voorzijde van de woning en voelt licht en ruim aan. Via een stijlvolle stalen schuifdeurenwand bereikt u de royale woonkeuken welke is gelegen aan de achterzijde van de woning.
De keuken is uitgevoerd in een warme taupetint, opgesteld in een ruime L-vorm met bar, en voorzien van veel opbergruimte dankzij greeploze laden en kasten. De keuken is uitgerust met een inductiekookplaat met geïntegreerde afzuiging, een RVS spoelbak met designkraan en een vaatwasser met vloerindicator. De koel-vriescombinatie, oven, combimagnetron en apothekerskast zijn fraai verwerkt in een zwarte houtlook wandunit. Het geheel is afgewerkt met een stoer werkblad in betonlook. Naast de keuken is er meer dan voldoende plek voor een gezellige grote eettafel.
Via een deur in de keuken bereikt u de bijkeuken en garage. In de bijkeuken bevinden zich de aansluitingen voor was- en droogapparatuur en ruimte voor bijvoorbeeld een extra vriezer. Ook hier is een deur naar de tuin aanwezig.
De fijne achtertuin is een oase van rust en beleving. Direct aan het water gelegen, bestaat de tuin uit twee niveaus: het bovenste terras met onderhoudsarm kunstgras en een ruime vlonder boven het water. Hier kunt u heerlijk zonnen, loungen of lekker buiten eten. Het lager gelegen terras biedt nog meer privacy en een adembenemend uitzicht over het water. De zwemtrap, extra berging onder de vlonder en de meegeleverde kunststof boot maken het plaatje compleet – instappen en ultiem genieten van veel waterplezier!
Deze verdieping is voorzien van lichte houten vloerdelen, strak stucwerk en sfeervolle behangwanden.
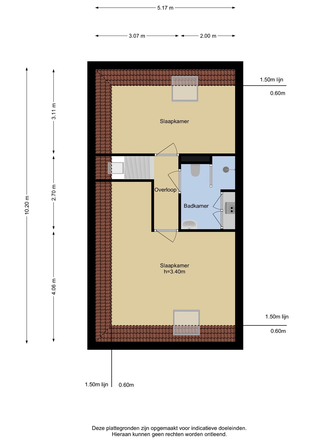
Eerste verdieping
Op de eerste verdieping bevindt zich een ruime overloop met toegang tot drie royale slaapkamers.
De master bedroom beschikt over openslaande deuren naar het balkon aan de achterzijde van de woning en een stijlvolle inloopkast met schuifdeuren.
De prachtige badkamer op deze verdieping is geheel betegeld in een beige marmerlook, uitgerust met twee wastafels beiden met meubel en spiegelkast, een ligbad, douchecabine en een tweede wandcloset.
De plafonds zijn op deze verdieping, voorzien van moderne inbouwspots en alle slaapkamers zijn voorzien van airconditioning.
Tweede verdieping
De tweede verdieping biedt ook een zee aan ruimte met een overloop en toegang tot twee slaapkamers en een tweede badkamer.
De royale slaapkamer aan de voorzijde is licht, ruim en voorzien van airconditioning. De slaapkamer aan de achterzijde beschikt over een dakraam en eveneens airco.
De moderne tweede badkamer is volledig betegeld in wit met een bruine tegelvloer en voorzien van een derde wandcloset, douchecabine, wastafel met meubel, spiegel en verlichting. In een fraaie kast is de cv-installatie netjes weggewerkt.
Dankzij de zonnepanelen, hybride omvormer en het slimme knoppen systeem is deze woning niet alleen stijlvol en comfortabel, maar ook zeer energiezuinig!
Bijzonderheden
- Gelegen op eigen grond;
- Bouwjaar 2003;
- EPA-Label A;
- Nieuwe zonnepanelen met hybride omvormer (2025), aansluiting thuisbatterij mogelijk;
- Tado slimme thermostaatknoppensysteem blijft achter;
- Gebruiksoppervlakte wonen: ca. 227m²;
- Overige inpandige ruimte 21 m²;
- Perceeloppervlakte: ca. 281 m²;
- Oplevering in overleg.
Toelichtingsclausule NEN2580
De Meetinstructie is gebaseerd op de NEN2580. De Meetinstructie is bedoeld om een meer eenduidige manier van meten toe te passen voor het geven van een indicatie van de gebruiksoppervlakte. De Meetinstructie sluit verschillen in meetuitkomsten niet volledig uit, door bijvoorbeeld interpretatieverschillen, afrondingen of beperkingen bij het uitvoeren van de meting.
Deze informatie is door ons met de nodige zorgvuldigheid samengesteld. Onzerzijds wordt echter geen enkele aansprakelijkheid aanvaard voor enige onvolledigheid, onjuistheid of anderszins, dan wel de gevolgen daarvan. Alle opgegeven maten en oppervlakten zijn indicatief.