Beschrijving
Deze ruime woning is gelegen in het populaire Dolfijnpark in Ridderkerk, een rustige en kindvriendelijke wijk met volop groen en diverse speelgelegenheden. In de directe omgeving vindt u scholen, sportfaciliteiten en winkelvoorzieningen. Dankzij de centrale ligging zijn de uitvalswegen richting Rotterdam en Dordrecht binnen enkele minuten bereikbaar. Ook het openbaar vervoer is uitstekend geregeld, waardoor u eenvoudig naar de omliggende steden reist.
Indeling van de woning
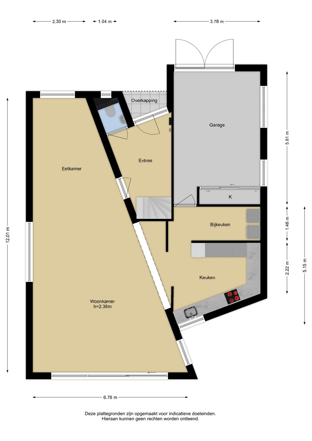
Begane grond
Bij binnenkomst treft u een ruime hal met de trapopgang naar de eerste verdieping en een toilet met fonteintje. Vanuit de hal bereikt u de lichte woonkamer, voorzien van grote raampartijen die zorgen voor veel natuurlijk licht en een prachtig uitzicht op de groene omgeving. De woonkamer beschikt over een sfeervolle gashaard, ingebouwde TV en airconditioning. Via de schuifpui heeft u directe toegang tot de zonnige achtertuin.
De open keuken is praktisch ingericht en voorzien van diverse inbouwapparatuur. Aangrenzend bevindt zich een bijkeuken met wasmachine- en drogeraansluiting en extra bergruimte. Vanuit de bijkeuken is de garage bereikbaar.
De gehele verdieping, inclusief de garage is voorzien van vloerverwarming.
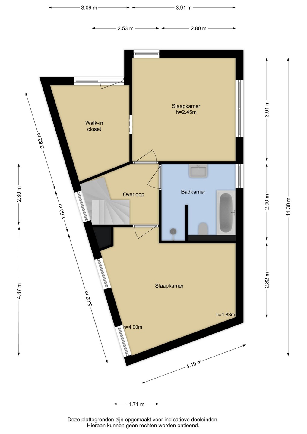
Eerste verdieping
Hier bevinden zich twee ruime slaapkamers en een derde kamer die momenteel is ingericht als walk-in closet. Deze kamer kan eenvoudig worden omgebouwd tot extra slaapkamer of een fijne thuiswerkplek. De moderne badkamer is uitgerust met een ligbad, douche, wastafel en toilet.
Tweede verdieping
De zolderverdieping biedt extra ruimte die naar wens kan worden gebruikt als slaapkamer, hobbykamer of kantoor.
Buitenruimte
De woning beschikt over een heerlijke, beschutte achtertuin met veel privacy — een ideale plek om in de zomer te genieten of waar kinderen veilig kunnen spelen. Het tuinhuis met houten vlonder vormt een perfecte plek om te ontspannen in de zon. De tuin is deels bestraat, voorzien van een overkapping met heaters en verder ingericht met een gazon, diverse beplanting, tuinverlichting en een beregeningssysteem. Aan de voorzijde is ruimte om twee auto’s te parkeren op de oprit.
Bijzonderheden
• Gelegen in het rustige en groene Dolfijnpark
• Energielabel B
• Ruime en lichte woonkamer met open keuken
• Meerdere slaapkamers en flexibele indeling
• Voorzien van zonnepanelen
• Zonnige en beschutte achtertuin met tuinhuis en overkapping
• Centrale ligging nabij winkels, scholen en uitvalswegen
• Alarmsysteem
• Vernieuwde dakisolatie en dakpannen