Beschrijving

Wil je graag wonen in een heerlijk rustige straat aan de rand van Ridderkerk in de wijk Oost? Dan hoef je zeker niet verder te zoeken. Deze eengezinswoning beschikt over 3 royale slaapkamers en een nette badkamer en keuken. Dé eyecatcher van deze woning is de geweldige veranda in de tuin. Echt een verlenging van de woonkamer om vele momenten in door te brengen. Door het eventueel plaatsen van een tv, kijk je hier met het gezin die leuke film of die gezellige voetbalwedstrijd met vrienden! De ruimte is van alle gemakken voorzien, denk aan fijne screens en een ventilator. Interesse? Plan direct een bezichtiging in via 085-0044277.

Op een steenworp afstand vindt je een fijne supermarkt, een basisschool en kinderopvang. Iets verder is het winkelcentrum “De Ridderhof” te vinden waar alle categorieën winkels zijn vertegenwoordigd en ontspanning is te vinden in het nabijgelegen “Oosterpark”. Heerlijk wandelen naar de kinderboerderij, een hapje nuttigen bij het restaurant of een bloemetje halen bij de “Bloemenjungle”; het is allemaal op korte afstand te vinden.
Openbaar vervoer en uitvalswegen zijn goed vertegenwoordigd als in de busverbinding en toegang tot de A15 en A16. Kortom prachtig wonen op een perfecte locatie!

Begane grond
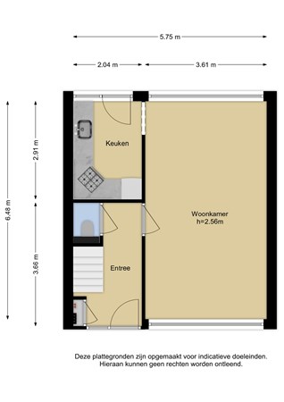
Via de zeer verzorgde voortuin is de entree van de woning bereikbaar. De hal geeft toegang tot de toiletruimte, de woonkamer, de meterkast (met vernieuwde groepen) en de trapopgang naar de eerste verdieping.
De toiletruimte is half betegeld en voorzien van een wandcloset.
De gezellige doorzonwoonkamer is voorzien van een sfeervolle inrichting en grote raampartijen aan beide zijden. Het zitgedeelte is gesitueerd aan de voorzijde van de woning en heeft een leuke kijk naar buiten. 
Het eetgedeelte is tuingericht gelegen en geeft toegang tot de keuken via een toog.
De halfopen keuken is geplaatst in een L-opstelling en uitgevoerd in een lichte tint met kunststof werkbladen in een donkere houtlook. Deze look komt terug in de vloer welke in de keuken is gelegd. Er is gebruik gemaakt van diverse inbouwapparatuur zoals; koelkast, combimagnetron, vaatwasser en een 5-pits gasfornuis met daarboven een RVS afzuigkap. Het geheel is afgewerkt met betegelde achterwanden en alle apparatuur is van het merk “Siemens”. Via een deur is de achtertuin bereikbaar.

De fijne achtertuin is perfect gelegen op het zonnige zuiden en voorzien van nette betegeling,  niveauverschil en diverse zitjes. De aanwezige berging is royaal van oppervlakte en biedt veel opbergmogelijkheid. Tevens is er via de berging toegang tot de achterom. De eerdergenoemde veranda is zeer sfeervol ingericht, voorzien van alle gemakken, de plavuizen hebben een rustieke houten vloer look. De veranda is op een stabiele betonnen vloer gebouwd.

Eerste verdieping
Overloop met toegang tot de 2 ruime slaapkamers, de badkamer en het separate toilet.
Slaapkamer één is gelegen aan de achterzijde van de woning en ca. 10, 4 m² groot. Slaapkamer twee is gelegen aan de voorzijde en maar liefst ca. 12,5 m² groot! Beide kamers zijn voorzien van comfortabele vloerbedekking, rolluiken en glasweefsel behangwanden met speelse accenten.
De badkamer is uitgevoerd in een lichte kleurstelling en geheel betegeld. Er is gebruik gemaakt van een ligbad, separate douchecabine, designradiator en een bad meubel met wasbak, diverse kasten en een spiegel. Het deels verlaagde plafond geeft een speels uiterlijk en is voorzien van spots en een ingebouwde radio installatie. Natuurlijke ventilatie is mogelijk door het aanwezige raam dat tevens een prettige lichtinval geeft.
Het toilet op deze verdieping is opgesteld in een separate ruimte tezamen met de was- en droogapparatuur. Deze ruimte is geheel betegeld en voorzien van een designradiator.

Tweede verdieping
Via de trapopgang is de royale voorzolder te betreden. Hier zijn de Remeha CV-ketel (2015) en de omvormer van de zonnepanelen te vinden. Via een luik is er toegang tot een vliering. 
De ruime ouderslaapkamer is recent verbouwd en keurig afgewerkt. Er is gebruik gemaakt van een mooie laminaatvloer en een sfeervolle behangwand. Het Velux dakraam zorgt voor voldoende daglicht en ventilatiemogelijkheid. Tevens is de ruimte voorzien van airconditioning, bergruimte achter knieschotten en ook in deze kamer is er een vlizotrap naar de vliering aanwezig.

Bijzonderheden
- Gelegen op eigen grond;
- Nagenoeg volledig voorzien van kunststof kozijnen met dubbele beglazing;
- Bouwjaar 1966;
- EPA-Label B;
- Gebruiksoppervlakte wonen: ca. 95 m²;
- Perceeloppervlakte: 138 m²;
- Gave veranda voorzien van alle gemakken;
- Lease-zonnepanelen ad € 39,- per maand, verplichte contractovername met mogelijkheid tot afkoop;
- Oplevering in overleg.

Toelichtingsclausule NEN2580
De Meetinstructie is gebaseerd op de NEN2580. De Meetinstructie is bedoeld om een meer eenduidige manier van meten toe te passen voor het geven van een indicatie van de gebruiksoppervlakte. De Meetinstructie sluit verschillen in meetuitkomsten niet volledig uit, door bijvoorbeeld interpretatieverschillen, afrondingen of beperkingen bij het uitvoeren van de meting.

Deze informatie is door ons met de nodige zorgvuldigheid samengesteld. Onzerzijds wordt echter geen enkele aansprakelijkheid aanvaard voor enige onvolledigheid, onjuistheid of anderszins, dan wel de gevolgen daarvan. Alle opgegeven maten en oppervlakten zijn indicatief.

Gezien het bouwjaar van de woning zal er een ouderdoms- en asbestclausule worden opgenomen.

Kenmerken