| Prijs | € 995.000,- k.k. |
| Type object | Villa, woonhuis, vrijstaande woning |
| Perceeloppervlakte | 600 m² |
| Woonoppervlakte | 242 m² |
| Aanvaarding | In overleg |
| Status | Verkocht |
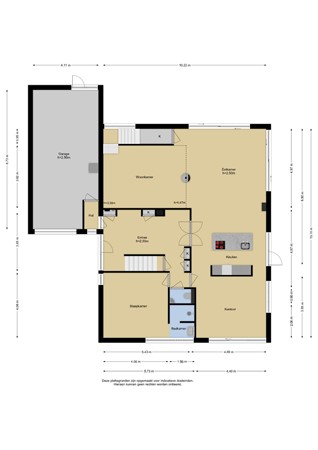
Roerdomp 8, Ridderkerk – Luxe, licht en leefruimte aan het Oosterpark Aan de geliefde Roerdomp in de groene wijk Drievliet ligt deze volledig in 2024 verbouwde en geïsoleerde vrijstaande villa met een woonoppervlakte van circa 242 m² op een ruim perceel. Een woning die werkelijk instapklaar is, met een hoog afwerkingsniveau, een prachtige lichtinval en een moderne, eigentijdse uitstraling. Interesse? Logisch! Wacht niet te lang, plan direct een bezichtiging in via 085-0044277. De wijk kenmerkt zich door brede lanen, volwassen bomen en een vriendelijke, gemoedelijke sfeer. Kinderen kunnen veilig spelen in de vele hofjes en speeltuintjes, terwijl scholen, kinderopvang en sportvoorzieningen allemaal op korte afstand liggen. Binnen enkele minuten fiets je naar het centrum van Ridderkerk met een compleet winkelaanbod, supermarkten en horeca. Ook de bereikbaarheid is uitstekend: via de uitvalswegen ben je in korte tijd in Rotterdam, Barendrecht of Dordrecht, terwijl openbaar vervoer in de buurt voor goede verbindingen zorgt. Zo combineert deze locatie het beste van twee werelden – rustig wonen in het groen, met de stad binnen handbereik. Begane grond Via de eigen oprit, met parkeergelegenheid voor twee auto’s, bereikt u de entree van de woning én de garage. De garage is ruim en biedt volop bergruimte of plaats voor een auto. Binnenkomst gebeurt in de royale hal met een stijlvolle trapopgang, garderobe, toegang tot de garage en de woonkamer via prachtige stalen taatsdeuren. Vanuit de hal bereikt u tevens de ouderslaapkamer, de toiletruimte én de kelder. De toiletruimte is netjes uitgevoerd met een wit wandcloset en een fonteintje met meubel. De kelder biedt veel extra opslagruimte en is ideaal als wijnkelder of hobbyruimte. De master bedroom op de begane grond is heerlijk ruim en beschikt over een eigen, volledig betegelde badkamer in lichte tinten, voorzien van een douche en een wastafelmeubel met spiegel. Dit maakt deze woning levensbestendig en is één van de vele pluspunten van de woning. De woonkamer is het absolute hart van het huis: een indrukwekkende leefruimte met hoge plafonds, grote raampartijen en een sfeervolle vuurhaard centraal in de ruimte. Het zitgedeelte ligt aan de tuinzijde en geniet van veel lichtinval en een speelse trap naar de bovengelegen vide. Via de open verbinding loopt u naar het eetgedeelte, dat direct grenst aan de prachtige designkeuken. De keuken is een echte eyecatcher – strak, modern en van alle gemakken voorzien met duurzame Gaggenau apparatuur. De luxe wandopstelling beschikt over een geïntegreerd koffiezetapparaat, een stoomoven, koelkast, vriezer en de vaatwasser. Het eiland, uitgevoerd ineen stijlvolle taupetint, is voorzien van een kookgedeelte met inductieplaat en geïntegreerde afzuiging, een reguliere oven, een spoelgedeelte met wasbak en een Quooker voor direct kokend water. Net als in de wandopstelling is in het eiland voldoende bergruimte aanwezig d.m.v. laden en kasten. Via de royale schuifpui aan de achterzijde loopt u zo de tuin in met een fraai uitzicht op het Oosterpark. Achter de keuken bevindt zich bovendien een prettige kantoorruimte met een eigen deur naar de tuin. Werken in deze ruimte, je bent afgesloten maar toch in contact met het thuisfront wat als zeer prettig wordt ervaren. De fijne tuin ligt rondom de woning en is fraai aangelegd met vers aangelegd gras en sfeervolle sierbeplanting. Door de speelse doorkijk kijkt u uit over de singel richting het Oosterpark en het gezellige restaurant De Pannenkoe. Een heerlijke plek om te ontspannen, te genieten van rust en natuur, terwijl u toch dichtbij alle voorzieningen van Ridderkerk en Rotterdam woont. Deze verdieping is voorzien van een prachtige visgraat gelegde PVC vloer en gestucte wanden. Eerste verdieping Op de eerste verdieping geeft de overloop toegang tot vier ruime slaapkamers, een indrukwekkende videkamer en de royale tweede badkamer. Twee van de drie slaapkamers aan de voorzijde van de woning hebben ieder toegang tot het balkon en veel bergruimte achter de schotten d.m.v. schuifdeurtjes. De indrukwekkende vide kijkt uit over de woonkamer en is zeer stijlvol afgesloten met een luxe glazen wand, wat zorgt voor rust, geluidsdemping en warmtebehoud zonder licht te verliezen. De tweede badkamer is luxueus uitgevoerd in een prachtige combinatie van lichte en zwarte tegels, een ligbad, inloopdouche, tweede wandcloset en een brede wastafel met meubel en spiegel. Via de hal is er tevens een vlizotrap aanwezig met toegang tot de bergzolder. Deze woning combineert ruimte, luxe en comfort met een uitzonderlijk mooie ligging. Volledig vernieuwd, uitstekend geïsoleerd en tot in detail afgewerkt — een thuis dat direct goed voelt. Bijzonderheden - Gelegen op eigen grond; - Volledig verbouwd en geïsoleerd in 2024 – instapklaar met luxe afwerking; - Indrukwekkende woonkamer met hoge plafonds, vide en sfeervolle haard; - Royale woonkeuken met kookeiland en toegang tot de tuin; - Praktisch kantoor aan huis met eigen toegang tot de tuin; - Slaap- en badkamer op de begane grond – levensloopbestendig wonen; - Luchtverwarmingsketel vervangen in 2024; - Eigen oprit met parkeerruimte voor twee auto’s en inpandige garage; - Bouwjaar 1979; - EPA-Label C; - Gebruiksoppervlakte wonen: ca. 242 m² - Perceeloppervlakte: ca. 600 m² - Oplevering in overleg. Toelichtingsclausule NEN2580 De Meetinstructie is gebaseerd op de NEN2580. De Meetinstructie is bedoeld om een meer eenduidige manier van meten toe te passen voor het geven van een indicatie van de gebruiksoppervlakte. De Meetinstructie sluit verschillen in meetuitkomsten niet volledig uit, door bijvoorbeeld interpretatieverschillen, afrondingen of beperkingen bij het uitvoeren van de meting. Deze informatie is door ons met de nodige zorgvuldigheid samengesteld. Onzerzijds wordt echter geen enkele aansprakelijkheid aanvaard voor enige onvolledigheid, onjuistheid of anderszins, dan wel de gevolgen daarvan. Alle opgegeven maten en oppervlakten zijn indicatief. Gezien het bouwjaar van de woning zal er een ouderdoms- en asbestclausule worden opgenomen.
| Vraagprijs | € 995.000,- k.k. |
| Status | Verkocht |
| Aanvaarding | In overleg |
| Aangeboden sinds | Donderdag 16 oktober 2025 |
| Laatste wijziging | Woensdag 12 november 2025 |
| Type object | Villa, woonhuis, vrijstaande woning |
| Soort bouw | Bestaande bouw |
| Bouwjaar | 1979 |
| Dakbedekking | Bitumen Dakpannen |
| Type dak | Zadeldak |
| Isolatievormen | Dakisolatie |
| Perceeloppervlakte | 600 m² |
| Woonoppervlakte | 242 m² |
| Inhoud | 1.130 m³ |
| Oppervlakte overige inpandige ruimten | 77 m² |
| Oppervlakte gebouwgebonden buitenruimte | 41 m² |
| Aantal bouwlagen | 2 |
| Aantal kamers | 7 (waarvan 6 slaapkamers) |
| Ligging | Aan park Aan rustige weg Aan water Beschutte ligging In woonwijk Vrij uitzicht |
| Type | Achtertuin |
| Hoofdtuin | Ja |
| Oriëntering | Zuidoost |
| Staat | Normaal |
| Tuin 2 - Type | Achtertuin |
| Tuin 2 - Staat | Normaal |
| Tuin 3 - Type | Voortuin |
| Tuin 3 - Staat | Normaal |
| Tuin 4 - Type | Zijtuin |
| Tuin 4 - Staat | Normaal |
| Energielabel | C |
| Warm water | Gasboiler |
| Verwarmingssysteem | Hete luchtverwarming |
| Badkamervoorzieningen Badkamer 1 | Inloopdouche Wastafel Wastafelmeubel |
| Badkamervoorzieningen Badkamer 2 | Inloopdouche Ligbad Toilet Wastafel Wastafelmeubel |
| Heeft airco | Ja |
| Heeft een rookkanaal | Ja |
| Tuin aanwezig | Ja |
| Heeft een schuifpui | Ja |
| Heeft ventilatie | Ja |
| Kadastrale aanduiding | Ridderkerk H 4110 |
| Perceeloppervlakte | 600 m² |
| Omvang | Geheel perceel |
| Eigendomsituatie | Eigen grond |