Beschrijving

Jouw droom begint hier – een topappartement met potentie! 

Aan de Paltroklaan 45 in Rotterdam ligt dit ruime topappartement dat wacht op een nieuwe eigenaar met visie. Het appartement is ingedeeld als driekamerwoning (voorheen 4) en vormt een ideaal startpunt om geheel naar eigen smaak en woonideeën te verbouwen. Dankzij de ligging op de bovenste verdieping geniet je hier van veel licht, privacy en een vrij uitzicht.

Interesse? Logisch! Wacht niet te lang, plan direct een bezichtiging in via 085-0044277.

De ligging van dit appartement is bijzonder gunstig. De Paltroklaan ligt in de wijk Hillegersberg-Schiebroek, een rustige, groene buurt, maar tegelijk centraal. Voor de dagelijkse boodschappen zijn er diverse winkels en supermarkten in de directe omgeving aan de Peppelweg. Ook scholen, sportvoorzieningen en zorgfaciliteiten bevinden zich op korte afstand. Openbaar vervoer is uitstekend geregeld: meerdere bus- en tramhaltes liggen op loopafstand en het treinstation Rotterdam Noord is eveneens goed bereikbaar. Wie met de auto reist, bereikt binnen enkele minuten de uitvalswegen A13 en A20, waardoor steden als Den Haag, Delft en Utrecht eenvoudig aan te rijden zijn. Met de fiets of tram sta je bovendien in ongeveer vijftien minuten in het bruisende centrum van Rotterdam. 

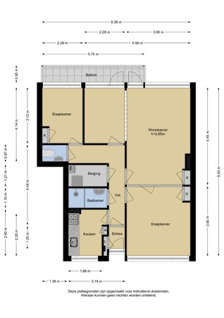
Vierde woonlaag
Bij binnenkomst kom je eerst in de voorhal met toegang tot de meterkast. Vanuit hier stap je de centrale hal in die toegang geeft tot alle vertrekken.

 Aan de voorzijde van de woning bevindt zich de master bedroom, compleet met vaste kast. Aan de achterzijde ligt de tweede slaapkamer, eveneens voorzien van een vaste kast en dus praktisch in gebruik. 

De woonkamer is uitgebroken en daardoor heerlijk ruim, met een vaste kast en maar liefst twee toegangen tot het balkon. Hier kun je genieten van de zon en het uitzicht over de groene omgeving.

Naast de woon- en slaapkamers vind je in de hal nog een separate berging met aansluitingen voor de wasapparatuur.

Ook het toilet met fonteintje en de badkamer met douchegedeelte en wastafel bevinden zich hier. 

De keuken is afgesloten en voorzien van een wandopstelling met diverse apparatuur en een vaste kast. Hoewel de inrichting eenvoudig is, biedt dit juist de kans om alles te moderniseren en naar eigen smaak in te delen.

Dit appartement is ideaal voor wie de handen uit de mouwen wil steken en een woning zoekt die volledig naar eigen stijl kan worden ingericht. Met zijn lichte en ruime indeling, praktische vaste kasten en de mogelijkheden die de huidige structuur biedt, vormt dit huis een uitstekende basis om te transformeren tot een comfortabel en eigentijds thuis.

Bijzonderheden:
- Niet zelf bewoningsclausule van toepassing daar verkoper niet zelf bewoond heeft; 
- Geen vragenlijst of lijst van zaken aanwezig;
- Verkoop onder voorbehoud van toestemming kantonrechter;
- Notariskeuze aan verkoper;
- Gelegen op eigen grond;
- Bouwjaar 1959;
- EPA-Label G;
- Voorzien van kunststof kozijnen met HR++ kozijnen;
- Gebruiksoppervlakte wonen: ca. 71 m²
- Bijdrage vve € 214,25 per maand en gezond;
- Oplevering in overleg.

Toelichtingsclausule NEN2580
De Meetinstructie is gebaseerd op de NEN2580. De Meetinstructie is bedoeld om een meer eenduidige manier van meten toe te passen voor het geven van een indicatie van de gebruiksoppervlakte. De Meetinstructie sluit verschillen in meetuitkomsten niet volledig uit, door bijvoorbeeld interpretatieverschillen, afrondingen of beperkingen bij het uitvoeren van de meting.

Deze informatie is door ons met de nodige zorgvuldigheid samengesteld. Onzerzijds wordt echter geen enkele aansprakelijkheid aanvaard voor enige onvolledigheid, onjuistheid of anderszins, dan wel de gevolgen daarvan. Alle opgegeven maten en oppervlakten zijn indicatief.

Gezien het bouwjaar van de woning zal er een ouderdoms- en asbestclausule worden opgenomen.

Kenmerken