Beschrijving

Midden op de bruisende Kaap (Katendrecht) ligt dit in 2014 volledig getransformeerde appartement aan de Rechthuislaan 20D. Een plek waar de energie van de stad letterlijk om de hoek begint. Het appartement is verdeeld over twee verdiepingen en is instapklaar! De prachtige keuken en badkamer zijn een lust voor het oog evenals de sfeervolle woonkamer 

Interesse? Logisch! Wacht niet te lang, plan direct een bezichtiging in via 085-0044277.

Hier woon je op een toplocatie met een enorm aanbod aan restaurants, cafés, winkels en culturele hotspots op o.a. het Deliplein binnen handbereik. Ook voor gezinnen is het hier prima wonen: er zijn diverse basisscholen in de nabijheid te vinden, evenals kinderopvang en speelplekjes. De dynamiek van de stad ervaar je direct bij het verlaten van de deur, maar thuis geniet je van licht, ruimte en comfort.

De bereikbaarheid is ongeëvenaard: met metro-, tram- en busverbindingen en zelfs de watertaxi om de hoek sta je binnen enkele minuten in het centrum, bij de Erasmus Universiteit of op Rotterdam Centraal. Voor wie met de auto reist, zijn de belangrijke uitvalswegen zoals de A16, A20 en A13 eenvoudig en snel bereikbaar. Zo combineer je het beste van twee werelden: wonen midden in de stad én toch overal snel naartoe kunnen.

Dit is wonen op een plek waar stadsleven, gemak en mobiliteit hand in hand gaan – perfect voor iedereen die Rotterdam écht wil ervaren.

Begane grond
Via de begane grond betreed je het verzorgde trappenhuis dat je naar de verdieping leidt. 

Tweede verdieping
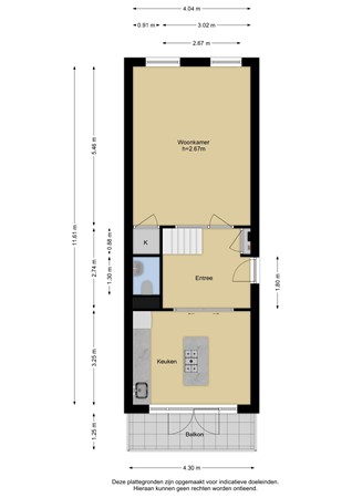
De entree komt uit in een royale hal met de meterkast, de videofooninstallatie, een toiletruimte en de trap naar boven. 
Vanuit hier stap je binnen in de sfeervolle woonkamer, voorzien van een vaste kast, strak behangen wanden en plafonds en twee grote raampartijen met draai-/kiepramen die de ruimte vullen met natuurlijk licht.

Aan de andere zijde van de hal bevindt zich de indrukwekkende woonkeuken, bereikbaar via twee schuifdeuren. De keuken straalt stijl en karakter uit met zwarte houtlook fronten, een los kookeiland met vijf robuuste gaspitten en een RVS afzuigkap. 
De wandunit is uitgerust met moderne inbouwapparatuur zoals een koel-/vriescombinatie, oven en vaatwasser. Het geheel is verfijnd afgewerkt met houtlook werkbladen en een behangen achterwand, en biedt volop bergruimte dankzij de praktische kasten en lades. 
Vanuit de keuken leiden openslaande deuren naar het balkon, afgewerkt met een houten vlondervloer en gelegen op het noordoosten: een ideale plek om te genieten van rust, midden in de stad.

Het toilet op de woonverdieping sluit naadloos aan bij de stijl van de badkamer en is uitgevoerd met een wandcloset en fonteintje.

De woonverdieping beschikt over een warme houten vloer en een strakke wandafwerking.

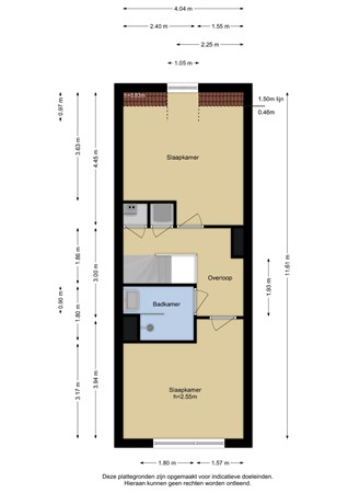
Derde verdieping
De trap in de hal brengt je naar de slaapverdieping, waar een royale overloop toegang geeft tot twee ruime slaapkamers. 

De badkamer is chique uitgevoerd met zwarte betegeling tot aan het plafond en voorzien van een moderne inloopdouche, een wastafel met spiegel en planchet en een designradiator. 

Ook deze verdieping is prachtig afgewerkt met strakke wanden en een sfeervolle laminaatvloer.

Hier woon je op een plek waar de charme van stijlvol afgewerkt wonen samenkomt met de energie en het gemak van de stad. Rechthuislaan 20D biedt je het beste van Rotterdam – elke dag opnieuw.
 
Bijzonderheden
- Gelegen op eigen grond;
- Origineel bouwjaar 1901;
- Volledig getransformeerd in 2014, waarbij de woning tot aan de voegen aan toe opnieuw opgebouwd is;
- EPA-Label D;
- Gebruiksoppervlakte wonen: ca. 92 m²
- Bijdrage vve € 180,33 per maand en gezond;
- Oplevering in overleg.

Toelichtingsclausule NEN2580
De Meetinstructie is gebaseerd op de NEN2580. De Meetinstructie is bedoeld om een meer eenduidige manier van meten toe te passen voor het geven van een indicatie van de gebruiksoppervlakte. De Meetinstructie sluit verschillen in meetuitkomsten niet volledig uit, door bijvoorbeeld interpretatieverschillen, afrondingen of beperkingen bij het uitvoeren van de meting.

Deze informatie is door ons met de nodige zorgvuldigheid samengesteld. Onzerzijds wordt echter geen enkele aansprakelijkheid aanvaard voor enige onvolledigheid, onjuistheid of anderszins, dan wel de gevolgen daarvan. Alle opgegeven maten en oppervlakten zijn indicatief.

Kenmerken