Beschrijving

Fantastisch wonen op een toplocatie waar stadse dynamiek en groene rust perfect samenkomen – welkom aan de Zernikeplaats 304 in Rotterdam!

Wonen op een centrale en levendige locatie in Rotterdam-Oost? Dit comfortabele en goed ingedeelde appartement aan de Zernikeplaats 304 biedt het beste van twee werelden: rustig wonen met alle stadsvoorzieningen binnen handbereik.
De woning beschikt over een lichte woonkamer, een praktische indeling en is een blank canvas dat je zelf geheel naar eigen smaak kunt maken! Ideaal voor starters, young professionals of studerenden die comfortabel willen wonen met alles dichtbij.
De ligging is absoluut een pluspunt. Voor je dagelijkse boodschappen en uitgebreid winkelen ben je binnen enkele minuten bij het Alexandrium Shopping Center of het gezellige winkelcentrum aan het Eudokiaplein. Ook diverse supermarkten, speciaalzaken en horecagelegenheden bevinden zich in de directe omgeving.

Recreëren doe je in het nabijgelegen Kralingse Bos, waar je kunt wandelen, hardlopen, fietsen of ontspannen aan het water. Daarnaast zijn de Rottemeren en andere groene gebieden eenvoudig bereikbaar voor wie graag actief buiten is. De bereikbaarheid is uitstekend. Op loopafstand vind je metro- en bushaltes, waaronder Station Kralingse Zoom, met snelle verbindingen naar het centrum van Rotterdam en omliggende steden. Met de auto rijd je binnen enkele minuten op de A16 en A20, waardoor ook Den Haag, Utrecht en Breda goed bereikbaar zijn. Ook de Erasmus Universiteit Rotterdam ligt op korte afstand, wat deze locatie extra aantrekkelijk maakt.

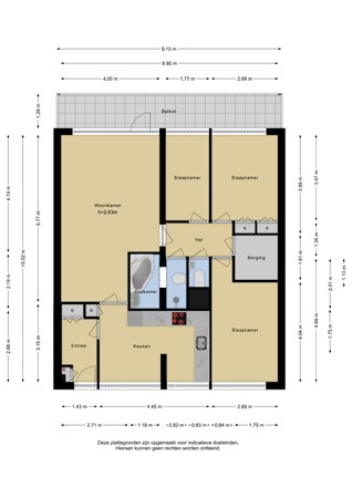
8ste verdieping
Via de galerij bereik je de entree van de woning. Vanuit de hal kom je bij de meterkast, een praktische garderoberuimte en een vaste kast voor extra bergruimte. Vanuit hier stap je ook de afgesloten keuken binnen.

De keuken kijkt uit op de galerij en is opgesteld in een royale hoekopstelling in een vanillekleur. De keuken is voorzien van diverse inbouwapparatuur, waaronder een koelkast, oven en een inductiekookplaat met afzuigkap. Daarnaast is er ruimte voor een losse magnetron en vaatwasser. Het geheel is afgewerkt met kunststof werkbladen en betegelde achterwanden.

Via de keuken kom je in de woonkamer. Deze lichte leefruimte biedt toegang tot het woningbrede balkon, waar je heerlijk van het buitenleven kunt genieten. Bovendien is de woonkamer uitgerust met airconditioning en elektrisch zonnescherm, wat bijdraagt aan extra comfort.

Een deur vanuit de woonkamer geeft toegang tot een tweede hal, die leidt naar de overige vertrekken. De grootste slaapkamer bevindt zich aan de galerijzijde. De twee overige slaapkamers liggen aan de achterzijde van de woning. De middelgrote slaapkamer beschikt over twee vaste inbouwkasten, wat zorgt voor praktische opbergruimte.

Verder vind je vanuit de hal een ruime bergkast en een separaat toilet. De vergrote badkamer is compleet uitgevoerd en beschikt over een hoekbad met douchescherm, een wastafel met planchet, een separate inloopdouche en een tweede toilet. De badkamer is grotendeels betegeld in een lichte kleurstelling met sierstrip, wat zorgt voor een frisse basis.

De woning wordt leeg opgeleverd, waardoor je direct aan de slag kunt om het geheel naar eigen smaak te moderniseren en in te richten. Dit biedt een uitstekende kans om hier jouw eigen woonwensen te realiseren en een thuis te creëren dat volledig aansluit bij jouw stijl en voorkeuren.

Bijzonderheden:
- Niet zelfbewonings-clausule van toepassing;
- Zelfbewoningsplicht t/m april 2028;
- Erfpacht einddatum recht en afgekocht tot en met 31 december 2101;
- Geen vragenlijst of lijst van zaken aanwezig;
- Notariskeuze aan verkoper;
- Blokverwarming;
- Bouwjaar 1974;
- EPA-Label C;
- Gebruiksoppervlakte wonen: ca. 88 m²;
- Bijdrage vve € 332,52 per maand en gezond;
- Oplevering in overleg/kan spoedig.

Toelichtingsclausule NEN2580
De Meetinstructie is gebaseerd op de NEN2580. De Meetinstructie is bedoeld om een meer eenduidige manier van meten toe te passen voor het geven van een indicatie van de gebruiksoppervlakte. De Meetinstructie sluit verschillen in meetuitkomsten niet volledig uit, door bijvoorbeeld interpretatieverschillen, afrondingen of beperkingen bij het uitvoeren van de meting.

Deze informatie is door ons met de nodige zorgvuldigheid samengesteld. Onzerzijds wordt echter geen enkele aansprakelijkheid aanvaard voor enige onvolledigheid, onjuistheid of anderszins, dan wel de gevolgen daarvan. Alle opgegeven maten en oppervlakten zijn indicatief.

Gezien het bouwjaar van de woning zal er een ouderdoms- en asbestclausule worden opgenomen.

Kenmerken