Beschrijving

Wonen aan de Zwijndrechtsestraat 8 betekent verhuizen zonder zorgen naar een instapklare woning met een sfeervolle uitstraling, moderne afwerking en een verrassend praktische indeling. Perfect voor wie direct wil genieten van comfortabel wonen in een levendige en opkomende buurt van Rotterdam.

Interesse? Logisch, plan direct een bezichtiging in via 085-0044277.

De ligging in de wijk “Bloemhof”is perfect: een rustige straat met vriendelijke sfeer, maar met winkels (o.a. Winkelcentrum Zuidplein en Groene Hilledijk/Beijerlandselaan), supermarkten en gezellige horecagelegenheden om de hoek. Het bruisende Katendrecht en het centrum van Rotterdam zijn makkelijk bereikbaar met de fiets of het openbaar vervoer. Voor ontspanning vind je het groene Zuiderpark en de kades langs de Maas op korte afstand. Ook de uitvalswegen en treinstation Rotterdam Zuid zorgen voor uitstekende verbindingen met de rest van de stad en daarbuiten.

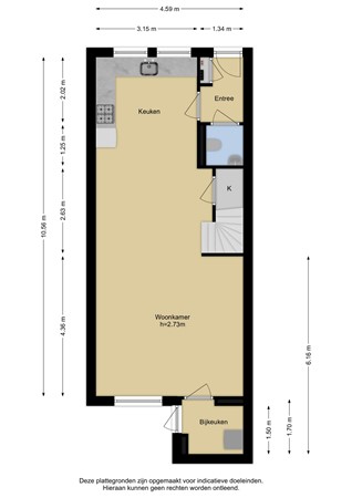
Begane grond
Bij aankomst valt meteen het charmante entree met het kleine opstapje aan de straat op. Via de voordeur kom je in de hal met de meterkast en toegang tot het toilet, dat stijlvol is afgewerkt met witte wandtegels, antraciet vloertegels, een modern wandcloset en een fonteintje. 

De lichte woonkamer heeft een eigentijdse uitstraling dankzij de moderne visgraat pvc-vloer met vloerverwarming en biedt een ruim zitgedeelte aan de achterzijde met een toegangsdeur naar de bijkeuken. De open trap naar de eerste verdieping geeft de ruimte extra karakter en heeft een handige trapkast eronder.

De keuken is opgesteld in een speelse L-vorm, uitgevoerd in stijlvol zwart met een praktisch kunststof werkblad en een betegelde achterwand. Koken wordt hier een plezier met de aanwezige inbouwapparatuur, waaronder een oven, een vierpits inductiekookplaat met afzuigkap en een koel-vriescombinatie. Dankzij de slimme kastopstelling is er volop bergruimte. 

Vanuit de bijkeuken bereik je de achtertuin, die volledig is betegeld en daardoor onderhoudsarm én ideaal om heerlijk te genieten van de buitenlucht. De tuin is prettig gelegen op het noordoosten.

Eerste verdieping
Op de eerste verdieping geeft de overloop toegang tot een technische ruimte met de opstelling van de cv-ketel (2025 huurketel). 
De twee ruime slaapkamers bevinden zich aan de voor- en achterzijde van de woning, beide goed in te delen als master bedroom, kinderkamer of thuiskantoor. 

De tussengelegen badkamer is volledig betegeld in tijdloze witte wandtegels met antraciet vloertegels en voorzien van een ligbad met douchegelegenheid, een tweede wandcloset, een wastafel met spiegel en planchet én een radiator voor extra comfort. Door de aanwezige ramen is er natuurlijk licht in deze ruimte.

Bijzonderheden
- Gelegen op eigen grond;
- Bouwjaar 1904;
- EPA-Label E;
- Cv ketel ut 2025 
- Huurcontract bij Feenstra: € 34,95 per maand, dient te worden overgenomen;
- Gebruiksoppervlakte wonen: ca. 80 m²
- Perceeloppervlakte: ca. 79 m²
- De wijk Bloemhof valt onder de opkoopbescherming. Dit houdt in dat een belegger de woning niet kan kopen voor de verhuur, al gelden er uitzonderingen zoals de verhuur aan een kind. Kijk voor meer informatie op de website van de gemeente Rotterdam. 
- De gemeente is in gesprek met de wijk Bloemhof over tal van onderwerpen, zoals bodemdaling, vervanging riool, kansrijke plekken, et cetera. Kijk voor meer informatie op de website van de gemeente Rotterdam, pagina MijnBloemhof. 
- Oplevering in overleg.

Toelichtingsclausule NEN2580
De Meetinstructie is gebaseerd op de NEN2580. De Meetinstructie is bedoeld om een meer eenduidige manier van meten toe te passen voor het geven van een indicatie van de gebruiksoppervlakte. De Meetinstructie sluit verschillen in meetuitkomsten niet volledig uit, door bijvoorbeeld interpretatieverschillen, afrondingen of beperkingen bij het uitvoeren van de meting.

Deze informatie is door ons met de nodige zorgvuldigheid samengesteld. Onzerzijds wordt echter geen enkele aansprakelijkheid aanvaard voor enige onvolledigheid, onjuistheid of anderszins, dan wel de gevolgen daarvan. Alle opgegeven maten en oppervlakten zijn indicatief.

Gezien het bouwjaar van de woning zal er een ouderdoms- en asbestclausule worden opgenomen.

Kenmerken