Beschrijving
Welkom in deze verrassend ruime eengezinswoning aan de Schiedamseweg 229 in Schiedam. Hier geniet je van een diepe woonkamer, een riante open keuken, drie slaapkamers met mogelijkheid tot een vierde, 12 zonnepanelen, een fijne achtertuin met overkapping en een speelse indeling!
Interesse? Logisch! Wacht niet te lang, plan direct een bezichtiging in via 085-0044277.
De ligging van deze woning is ideaal: scholen, kinderopvang, supermarkten en diverse winkels bevinden zich op loopafstand. Ook voor een lekker hapje of drankje zit je in de buurt goed.
Het openbaar vervoer (tram, bus en station Schiedam Centrum) is uitstekend bereikbaar, met snelle verbindingen richting Rotterdam, Delft en Den Haag. Met de auto zit je zo op de A4, A20 en A13, waardoor je vlot de hele regio doorkruist.
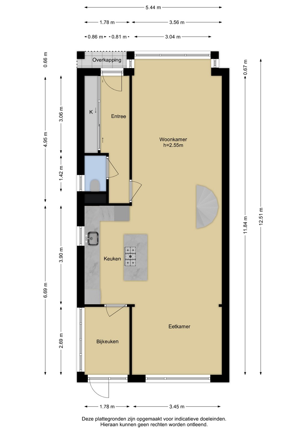
Begane grond
Via de gezellige voortuin tref je de voordeur van de woning. Bij binnenkomst stap je direct de hal binnen. Hier vind je een nette vaste schuifkastenwand met één spiegeldeur en ingebouwde verlichting — ideaal voor het opbergen van jassen, schoenen en overige spullen.
Vanuit de hal bereik je het toilet en de deur naar de woonkamer.
De langgerekte doorzonwoonkamer voelt licht en uitnodigend aan. De open wenteltrap vormt een speels en stijlvol element richting de eerste verdieping. De ruimte is netjes afgewerkt met een marmoleumvloer, behangwanden en inbouwspots in het plafond.
In het midden van de ruimte ligt de moderne open keuken, compleet uitgevoerd met een kookeiland, 5-pits gasfornuis met grote oven en daarboven een robuuste RVS-afzuigkap.
De L-vormige wandopstelling is voorzien van een vaatwasser, koelkast, vriezer en een handige apothekerskast. Vanuit de keuken heb je toegang tot de bijkeuken, waar voldoende ruimte is voor extra voorraad en apparatuur zoals een extra koelkast. De bijkeuken beschikt bovendien over een deur naar de achtertuin.
Naast de bijkeuken vinden we het sfeervolle eetgedeelte, deze ruimte nodigt uit om rustig van het avondeten te genieten, het aanwezige raam geeft een prettige doorkijk naar de achtertuin. De ruimte wordt verwarmd door middel van een designradiator.
De achtertuin is gelegen op het oosten en een heerlijke plek om te ontspannen. De royale overkapping biedt ruimte voor een gezellige loungehoek of eettafel, ideaal voor zowel zomeravonden als sfeervolle wintermomenten. Daarnaast vind je een leuk zitje, een buitenkeuken en een ruime berging. Dankzij de achterom is de tuin ook praktisch bereikbaar voor fietsen of tuinmateriaal.
Eerste verdieping
Via de open wenteltrap bereik je de royale ouderslaapkamer. Deze slaapkamer biedt toegang tot een inpandige walk-in closet welke is afgesloten door middel van Louvre deurtjes en heeft inbouwspots in het plafond. Tevens sluiten 2 kleine Louvre deurtjes een berging af.
Via een deur kom je op de overloop met een vaste schuifkastenwandje. Vanuit een halletje bereik je slaapkamer 2, waar tevens de wasapparatuur is opgesteld.
De badkamer is ruim van opzet en compleet uitgevoerd met een ligbad, een inloopdouche met regen- en handdouche, een dubbele wastafel met meubel en spiegelkasten en een afsluitbare toiletruimte. Ook bevindt zich hier een separate kast met opstelling voor de cv-ketel. Door de aanwezige ramen is er een fijne, natuurlijke lichtinval en ventilatie aanwezig.
Tweede verdieping
De tweede verdieping bereik je via een vaste trap vanaf de overloop. Hier kom je uit op een royale voorzolder, die dankzij de ruime opzet ook uitstekend gebruikt kan worden als extra slaapkamer, werkruimte of hobbykamer.
Daarnaast is er nog een derde ruime slaapkamer aanwezig evenals een fijne bergzolder.
Deze woning verkeert in een staat waarin nog aanzienlijk werk nodig is. Er is een start gemaakt met opknappen, maar dit is niet volledig uitgevoerd. Hierdoor zijn verschillende ruimtes half af of aan vervanging toe.
Voor kopers die niet terugschrikken van een flinke klus, biedt de woning een basis om verder op te bouwen. Het is geen instapklare woning, maar een woning die veel potentie heeft.
Bijzonderheden:
- Gelegen op eigen grond;
- Bouwjaar 1922;
- 12 zonnepanelen;
- EPA-Label F;
- Gebruiksoppervlakte wonen: ca. 141 m²;
- Perceeloppervlakte: ca. 222 m²;
- Oplevering in overleg.
Toelichtingsclausule NEN2580
De Meetinstructie is gebaseerd op de NEN2580. De Meetinstructie is bedoeld om een meer eenduidige manier van meten toe te passen voor het geven van een indicatie van de gebruiksoppervlakte. De Meetinstructie sluit verschillen in meetuitkomsten niet volledig uit, door bijvoorbeeld interpretatieverschillen, afrondingen of beperkingen bij het uitvoeren van de meting.
Deze informatie is door ons met de nodige zorgvuldigheid samengesteld. Onzerzijds wordt echter geen enkele aansprakelijkheid aanvaard voor enige onvolledigheid, onjuistheid of anderszins, dan wel de gevolgen daarvan. Alle opgegeven maten en oppervlakten zijn indicatief.
Gezien het bouwjaar van de woning zal er een ouderdoms- en asbestclausule worden opgenomen.