Beschrijving

Deze goed onderhouden maisonnettewoning is gelegen in het hart van Zoetermeer! De nieuwe badkamer en gezellige keuken maken deze woning instap klaar. Naast twee royale slaapkamers beschikt de woning ook over een fijn terras op het zuidwesten.

Interesse? Vraag snel een bezichtiging aan op het nummer 085-0044277.

De wijk “ Seghwaert-Noord-Oost” staat bekend als kindvriendelijk en knus en beschikt over diverse voorzieningen. Boodschappen doe je bij een nabij gelegen supermarkt of in het gezellige winkelcentrum “Stadshart Zoetermeer”. Via de binnenwegen ben je binnen enkele autominuten op de uitvalswegen A12, A4 en de N209 waardoor omliggende steden makkelijk aan te rijden zijn. Ook zijn basisscholen en kinderopvang op korte afstand te vinden.

Begane grond
De entree van de woning is bereikbaar via de trap naar de eerste verdieping. Op de begane grond bevindt zich een eigen bergruimte. 

Eerste verdieping
De nette hal geeft toegang tot de meterkast en de keuken.
De keuken is geplaatst in een royale hoekopstelling en uitgevoerd in een lichte tint. Er is gewerkt met losse apparatuur zoals; de afwasmachine, koel/vries combinatie en magnetron. Het kookgedeelte beschikt over een ingebouwde 5-pits gaskookplaat met daarboven een RVS afzuigkap. In dezelfde stijl als de keuken is een praktisch eetgedeelte geplaatst. De keuken en deze tafel zijn beiden voorzien van mooie houtlook werkbladen. De achterwand is netjes betegeld met een grote witte tegel en in de koof is inbouwverlichting geplaatst.

De keuken loopt vloeiend over in de woonkamer welke is gelegen aan de achterzijde van de woning. Door het grote raam is er een prettige lichtinval aanwezig. Via de deur is er toegang tot het terras van ca 7 m² groot. Hier is een prachtig uitzicht over water en groen te vinden. In de nis naast het terras is een werkplek gecreëerd welke uiteraard ook prima zou fungeren als bijvoorbeeld een speelhoekje.

Het terras is geheel voorzien van nette betegeling, gelegen op het zonnige zuidwesten en geeft een fijn uitzicht over de achtergelegen singel en groen.

Vanuit de woonkamer is er toegang tot de tweede hal met toegang tot de tweede verdieping en de toiletruimte.
De toiletruimte is half betegeld in een nette combinatie van wit en antracietgrijs. Er is gebruik gemaakt van een wandcloset en een fonteintje. Tevens bevindt zich hier ook een extra bergruimte.
De begane grond is met uitzondering van de toiletruimte voorzien van een mooie laminaatvloer in een warme tint.

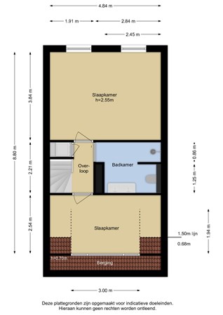
Tweede verdieping
Via de overloop is er toegang tot alle vertrekken en biedt door middel van de praktische nis plaats aan de wasmachine en droger.

Slaapkamer één is gelegen aan de voorzijde van de woning en is door de dakkapel te gebruiken als volwaardige slaapkamer. De knieschotten geven extra bergruimte.

Slaapkamer twee is royaal van oppervlakte en is gelegen aan de achterzijde van de woning. Deze kamer is momenteel in gebruik als master bedroom. Er is voldoende ruimte voor het plaatsen van een grote kastenwand of eventueel een inbouwkast. De slaapkamers zijn beiden afgewerkt met een nette laminaatvloer en dito wandafwerking.

Via een sfeervolle loftdeur is de badkamer te betreden. De ruimte is recent helemaal vernieuwd en is modern en stijlvol betegeld in een combinatie van een grote witte wandtegel en een gemêleerde grijze vloertegel met vloerverwarming. De fijne inloopdouche is voorzien van een regendouche met handdouche en thermostaatkraan. In de praktische nis kun je de nodige spulletjes of accessoires kwijt. 

Naast de inloopdouche vinden we het wandcloset en de dubbele wastafel met meubel en spiegel met verlichting. Door middel van de laden in het meubel is er veel opbergmogelijkheid. De gouden mengkranen en het zwarte garnituur in de doucheruimte en bij het toilet maken het geheel helemaal af. Bovendien is de badkamer uitgerust met nieuwe mechanische ventilatie, die zorgt voor een optimaal binnenklimaat en snelle afvoer van vocht.


Bijzonderheden
- Gelegen op eigen grond;
- Bouwjaar 1978;
- EPA-Label C;
- Gebruiksoppervlakte wonen: ca. 87 m²;
- Oppervlakte terras: ca. 7 m²;
- Nieuwe CV ketel 2021;
- Bijdrage VvE ca. € 85,- per maand en gezond;
- Oplevering in overleg.


Deze informatie is door ons met de nodige zorgvuldigheid samengesteld. Onzerzijds wordt echter geen enkele aansprakelijkheid aanvaard voor enige onvolledigheid, onjuistheid of anderszins, dan wel de gevolgen daarvan. Alle opgegeven maten en oppervlakten zijn indicatief.
De Meetinstructie is gebaseerd op de NEN2580. De Meetinstructie is bedoeld om een meer eenduidige manier van meten toe te passen voor het geven van een indicatie van de gebruiksoppervlakte. De Meetinstructie sluit verschillen in meetuitkomsten niet volledig uit, door bijvoorbeeld interpretatieverschillen, afrondingen of beperkingen bij het uitvoeren van de meting.
Gezien het bouwjaar van de woning zal er een ouderdoms- en asbestclausule worden opgenomen.

Kenmerken