Beschrijving
Welkom bij het Tomatenplein 4! Deze goed onderhouden, speelse eengezinswoning met energielabel C en gelegen op de hoek is klaar voor een nieuwe eigenaar. De woning beschikt over 3 goede slaapkamers en een riante zolder waar eenvoudig een slaapkamer extra gecreëerd kan worden. Verder is de woning voorzien van een strakke keuken en goed onderhouden sanitair. De in 2024 aangelegde tuin met overkapping, daar kan je zo in!
De woning ligt in een kindvriendelijke wijk, met diverse basisscholen op loopafstand en is zeer gunstig gelegen ten opzichte van openbaar vervoer; zowel de bus als de trein zijn op loopafstand. Liever met de auto? Geen probleem, je zit zo op de A16 en parkeren is gratis. Het overdekte winkelcentrum Walburg is goed bereikbaar en op nog kortere afstand bevinden zich voldoende winkels voor de snelle boodschap.
Interesse? Logisch! Wacht niet te lang, plan direct een bezichtiging in via 085-0044277.
Indeling
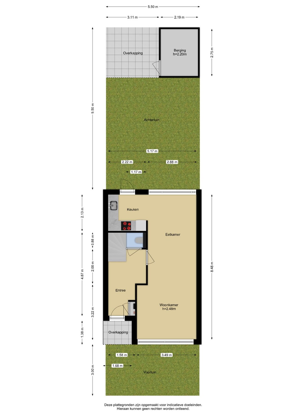
Begane grond:
Via de strak aangelegde voortuin (2024) betreedt je via een overkapping de woning. Nooit meer in de regen dus wanneer je de sleutels zoekt om binnen te komen.
De lichte hal is in 2025 nog vernieuwd en geeft toegang tot de trap naar de eerste verdieping, het toilet en de woonkamer. De diepe doorzonwoonkamer is eveneens licht en heeft het woongedeelte aan de voorzijde van de woning, welke deels voorzien is van sfeervolle houten panelen.
De eetkamer ligt aan de tuinzijde; hier is meer dan voldoende ruimte voor een grote eettafel, dus hou je van gezellig tafelen met de familie, geen probleem! Vanuit het eetgedeelte kijk je de keuken in en kijk je op de tuin.
De moderne L-vormige keuken is uitgevoerd in en lichte kleurstelling en beschikt over een landelijke touch. De keuken is voorzien van een koel- vriescombinatie, oven, 4-pitsgaskookplaat met RVS afzuigkap en een vaatwasser. Het geheel is afgewerkt met een gepolijst granieten werkblad.
Via de keuken betreed je de achtertuin. Deze is in 2024 volledig vernieuwd! Er staat een keurige schutting en alles is strak betegeld. Er is een border geplaatst met planten en de bomen buiten de tuin zorgen voor groen en privacy. Achter in de tuin is een sfeervolle overkapping en toegang tot de vrijstaande stenen berging.
De gehele begane grond is in 2025 voorzien van nieuw, lichte laminaattegels welke nog voorzien is van garantie en de wanden zijn wit gesausd.
Eerste verdieping:
Via de overloop kom je bij de badkamers, drie slaapkamers en de trap naar de zolderverdieping. Deze verdieping is tevens volledig wit gesausd en is voorzien van keurig doorgelegd laminaat.
De badkamer is verzorgd, volledig betegeld en voorzien van een douchecabine met nisje, toilet, ligbad met whirlpoolfunctie en wasmeubel. Er is een radiator en bovenlichtje welke open kan en de ruimte is voorzien van mechanische ventilatie.
Slaapkamer 1 ligt aan de achterzijde van de woning, slaapkamer 2 en 3 aan de voorzijde.
De zolder is momenteel een grote open ruimte. Ook deze verdieping is keurig voorzien van net laminaat en is volledig wit gesausd. Praktisch in de hoek bevindt zich de opstelling van de C.V.-Ketel (Intergas Xtreme 2023), de aansluiting van de wasmachine, alsook de mechanische ventilatie. De andere zijde van de ruimte is voorzien van knieschotten met praktische bergruimte.
Extra slaapkamer nodig? Dit valt eenvoudig te realiseren, ruimte genoeg!
Is je interesse gewekt? Plan dan snel een bezichtiging in en kom de woning van dichtbij bekijken, we heten je graag van harte welkom!
Bijzonderheden
- Gelegen op eigen grond;
- Bouwjaar 1986;
- EPA-Label C;
- Gebruiksoppervlakte wonen: ca. 98m²;
- Perceeloppervlakte: ca. 121 m²;
- Volledig voorzien van hardhouten kozijnen en dubbele beglazing;
- C.V.-ketel vernieuwd in 2023;
- Tuinaanleg voor en achter 2024;
- Laminaat begane grond met garantie 2025;
- Oplevering in overleg.
Toelichtingsclausule NEN2580
De Meetinstructie is gebaseerd op de NEN2580. De Meetinstructie is bedoeld om een meer eenduidige manier van meten toe te passen voor het geven van een indicatie van de gebruiksoppervlakte. De Meetinstructie sluit verschillen in meetuitkomsten niet volledig uit, door bijvoorbeeld interpretatieverschillen, afrondingen of beperkingen bij het uitvoeren van de meting.
Deze informatie is door ons met de nodige zorgvuldigheid samengesteld. Onzerzijds wordt echter geen enkele aansprakelijkheid aanvaard voor enige onvolledigheid, onjuistheid of anderszins, dan wel de gevolgen daarvan. Alle opgegeven maten en oppervlakten zijn indicatief.
Gezien het bouwjaar van de woning zal er een ouderdoms- en asbestclausule worden opgenomen.